Prima fasteignasala kynnir í sölu Hrafnaborg 9c um er að ræða 119,6m² fullbúið raðhús á einni hæð með 3 svefnherbergjum og 2 baðherbergjum á góðum stað í Vogunum. Eignin skilast fullbúin og er til afhendingar við kaupsamning. Frábært verð ! Hér má sjá hverfið og skipulagið
https://graenabyggd.is/Nánari lýsing.
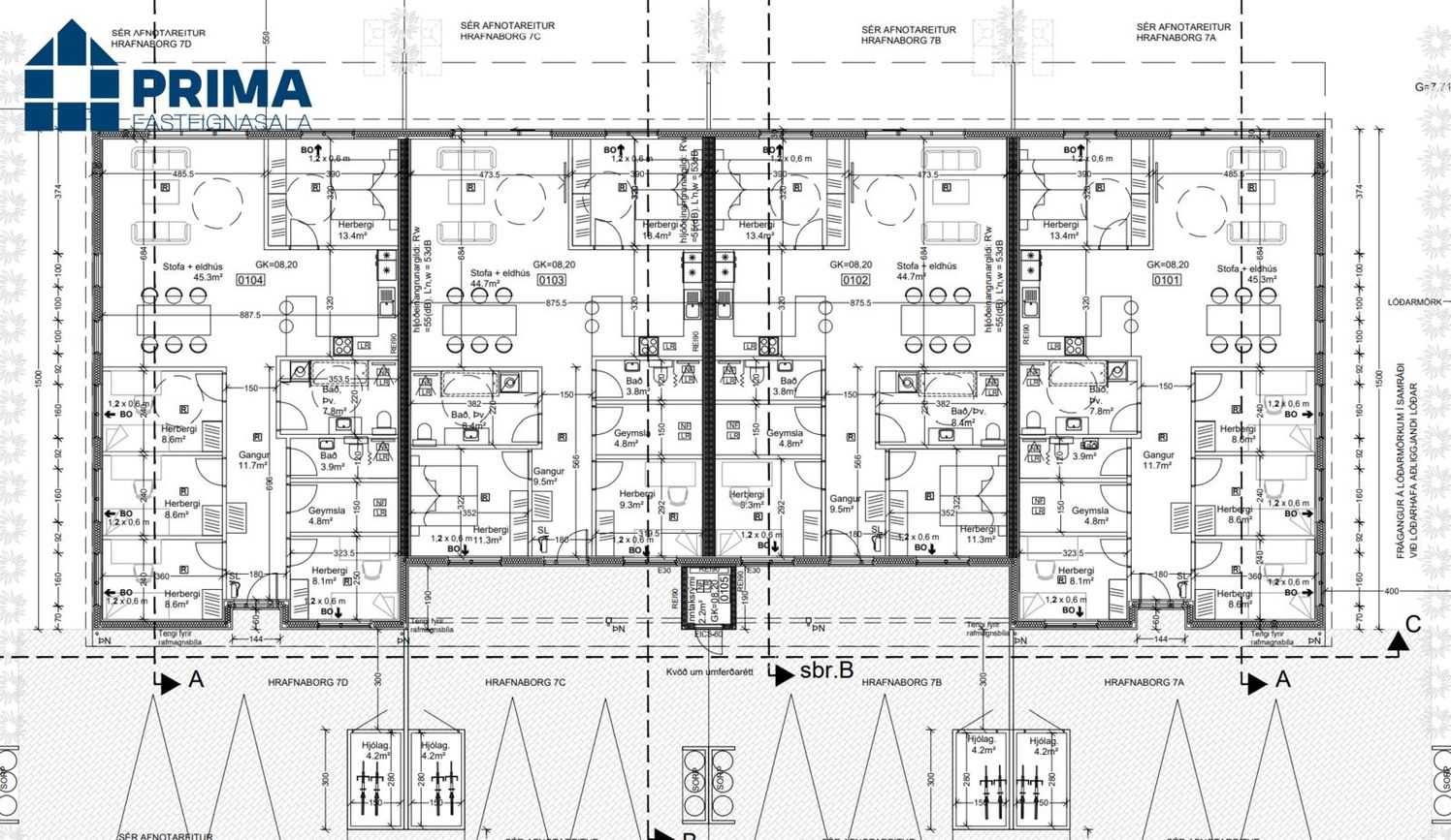
Fortstofuhol/gangur með skáp.
Svefnherbergi (1) með skáp.
Svefnherbergi (2) með skáp.
Baðherbergi með sturtu.
Geymsla.
Baðherbergi með baðkari og sturtu.
Eldhús er fullbúið með innbyggðum ísskáp og uppþvottavél.
Hjónaherbergi (3) með skápum.
Stofa í opnu rými með útgengi á verönd.
Hjólageymsla er sér fyrir hvert hús og er ekki inní fm tölu. 4,2 fm
Malbikuð bílastæði fyrir framan hús
Lóð skilast með hellulögn og verönd.
Gólfhiti er í húsinu.
Gólfefni á svefnherbergjum, gangi,stofu og eldhúsi er vínylparket.
Flísar á baðherbergjum og geymslu eru 60x60 flísar.
Tæki í eldhúsi eru uppþvottavél, ísskápur, ofn, helluborð og örbylgjuofn.
Nánari upplýsingar veittar hjá:
Óskar Már Alfreðsson lgf
Prima fasteignasala
Suðurlandsbraut 6 Reykjavík
S 6158200
oskar@primafasteignir.isUm skoðunar- og aðgæsluskyldu:Í lögum um fasteignakaup nr. 40/2002 er kveðið á um ríka skoðunarskyldu kaupenda á fasteignum. Væntanlegum kaupendum er bent á að kynna sér vel ástand fasteigna við skoðun og fyrir tilboðsgerð og ef þurfa þykir að leita til sérfræðinga um nánari ástandsskoðun. Almennt getur kaupandi ekki borið fyrir sig að ástand eignar sé annað en það sem hann hefði mátt sjá við slíka skoðun.
Forsendur söluyfirlits:Söluyfirlit er samið af fasteignasala í samræmi við ákvæði laga nr. 70/2015. Þær upplýsingar sem fram koma í söluyfirliti þessu eru sóttar í opinberar skrár, til seljanda sjálfs og eftir atvikum til húsfélags. Seljandi veitir upplýsingar um eign í samræmi við upplýsingaskyldu laga um fasteignakaup nr. 40/2002, og ábyrgist að þær séu réttar. Fasteignasali sannreynir að þær upplýsingar séu réttar með sjónskoðun á eigninni. Fasteignasali getur ekki fullyrt um ástand og eiginleika þeirra hluta fasteigna sem ekki eru aðgengilegir og sjást ekki berum augum, t.d. lagnir, dren, skólp og þak. Það sama á við um staðhæfingar seljanda eignar um viðhald og einstaka framkvæmdir.
Almennt um fylgifé íbúðarhúsnæðis:Til fylgifjár íbúðarhúsnæðis teljast varanlegar innréttingar og búnaður sem annaðhvort er skeytt varanlega við fasteignina eða er sérstaklega sniðinn að henni. Þetta á meðal annars við um fastan búnað og lagnir til hitunnar og vatnsmiðlunar, rafmagnsvirki og leiðslur, loftnet og annan móttökubúnað í eigu seljanda, sem fest eru á fasteign, föst gólfteppi og önnur gólfefni sérstaklega tilsniðin, gluggabúnað, bað- og eldhúsinnréttingar og tæki og vélar sem eru sérstaklega felld inn í innréttingarnar og verða hluti af þeim og aðra innbyggða hluta.
Um ástand einstakra eignarhluta:Efst í söluyfirlitli þessu er að finna dálka um ástand einstakra hluta eignarinnar. Eftirfarandi lykil er til skýringar á þeirri skráningu:
Nýtt - Eignin er nýbygging.
Upprunalegt - Seljandi veit ekki til þess að byggingarhluti hafi verið endurnýjaður.
Endurnýjað - Byggingarhlutinn hefur verið endurnýjaður í heild sinni á einhverjum tímapunkti.
Endurnýjað að hluta - Hluti byggingarhlutans hefur verið endurnýjaður á einhverjum tímapunkti.
Ekki vitað - Seljandi þekkir ekki til ástands og ekki er hægt að leggja mat á það með sjónskoðun.
Gjöld sem kaupandi þarf að standa straum af vegna kaupanna:Stimpilgjald af kaupsamningi sem er hlutfall af fasteignamati. Stimpilgjald er 0,8% fyrir einstaklinga (0,4% við fyrstu kaup) og 1,6% fyrir lögaðila.
Þinglýsingargjald af kaupsamningi, veðskuldabréfum, veðleyfum o.fl. Þinglýsingargjald er kr. 2.700,- fyrir hvert skjal.
Lántökugjald lánastofnunar. Um lántökugjald vísast í gjaldskrá viðkomandi lánveitanda.
Umsýsluþóknun fasteignasölu skv. gjaldskrá.
Ef um nýbyggingu er að ræða greiðir kaupandi skipulagsgjald, 0,3% af brunabótamáti, þegar það er lagt á.