Stærð: 68,4 fm með 2 herbergjum. Aðal eiginleikar: aukin lofthæð, gólfsíðir gluggar í alrými, gólfhiti, Corian steinn í baði, lagnaleiðir fyrir rafmagnshleðslu og heitan pott, snjóbræðsla.
Þessi lýsing er búin til af gervigreind Aurbjargar•
Eiginleikar
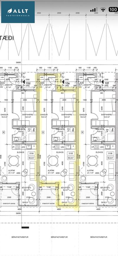
Íbúð
Raðhús á einni hæð með mikilli lofthæð, 68,4 fm. Samanstendur af anddyri, svefnherbergi, baðherbergi, eldhúsi, stofu og geymslulofti.
Stofa
Með parketi á gólfi og útgengt út á verönd til suðurs.
Eldhús
Opið inn í stofu með fallegri innréttingu, vönduðum tækjum, innbyggðri uppþvottavél og ísskápi, parket á gólfi.
Svefnherbergi
Eitt svefnherbergi með parketi á gólfi og hvítum fataskáp. Stigi upp í rúmgott geymsluloft yfir baðherberginu.
Baðherbergi
Flísalagt í hólf og gólf, stór sturta, upphengt salerni, falleg hvít innrétting, Corian steinn með innfelldri handlaug, tengi fyrir þvottavél og þurrkara.
Geymsla
Gott geymsluloft yfir baðherbergi og fataskápar í herbergjum.
Garður
Lóðin er tyrfð og afgirt.
Svalir/þak
Verönd til suðurs með útgengi úr stofu.
Tæki
Innbyggð uppþvottavél og ísskápur í eldhúsi, tengi fyrir þvottavél og þurrkara í baðherbergi.
Svæði
Staðsett í Vogum, aðeins 15 mínútur akstur í Hafnarfjörð.
Efni
Vandað 16mm plankaparket á gólfi, 60x60 flísar á baði og anddyri, Corian steinn í baðherbergi.
Annað
Bílastæði eru malbikuð og fylgja eigninni tvö stæði fyrir framan húsið, lagt fyrir snjóbræðslu en ótengt.