*** Holtsvegur 6 - 210 Garðabær ***
Opið hús: Eignin verður sýnd miðvikudaginn 8. apríl 2026 milli kl. 17:30 og kl. 18:00.
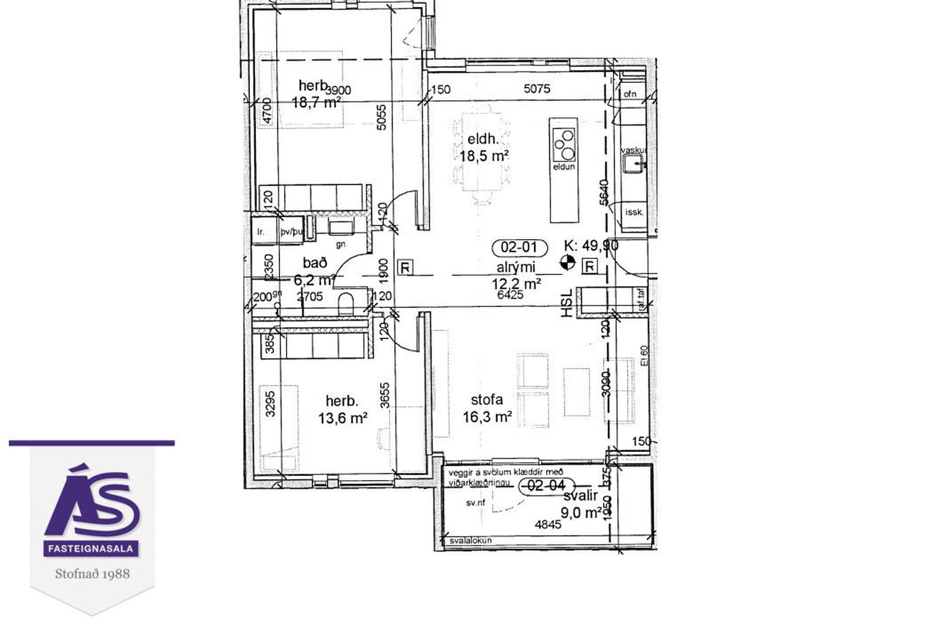
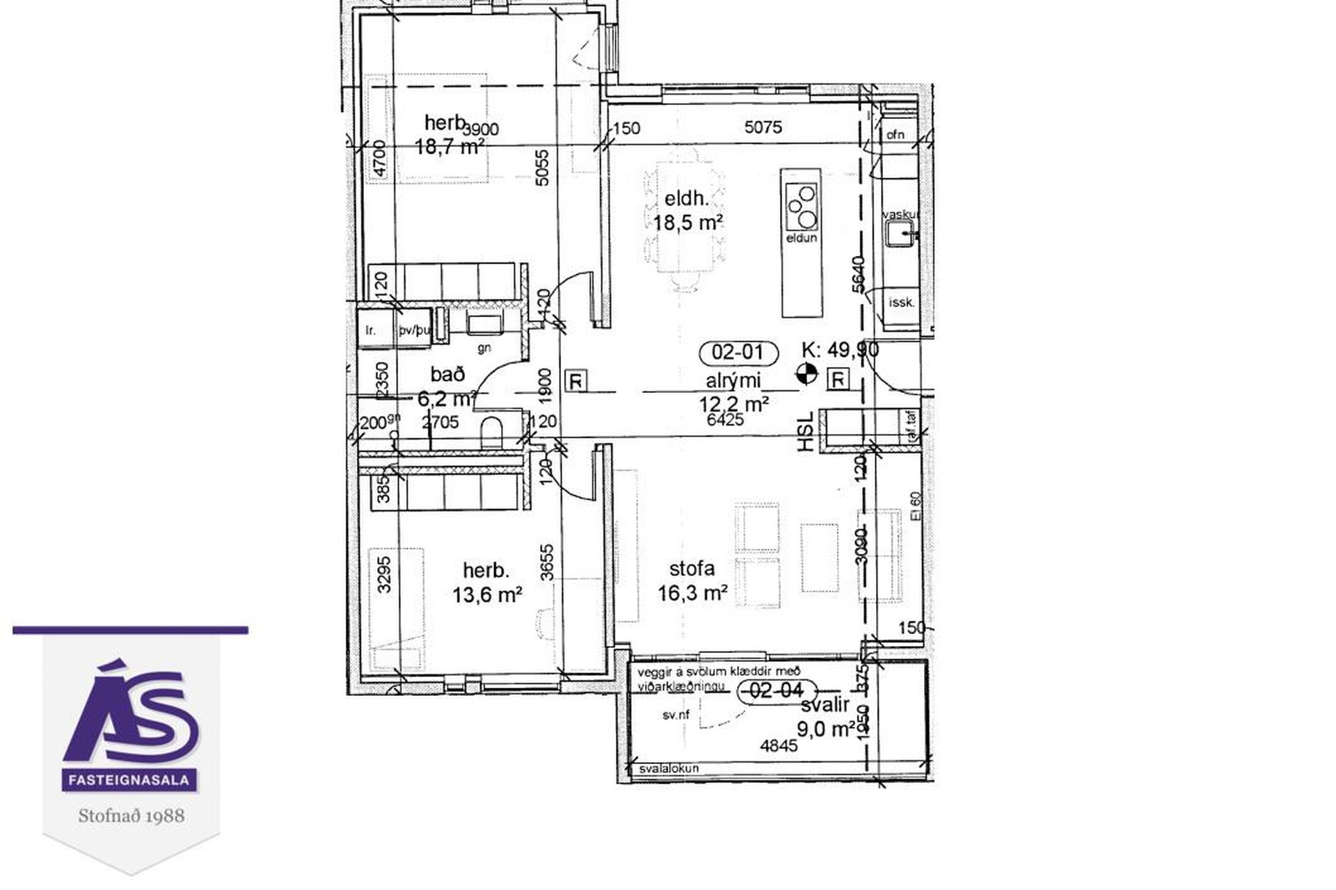
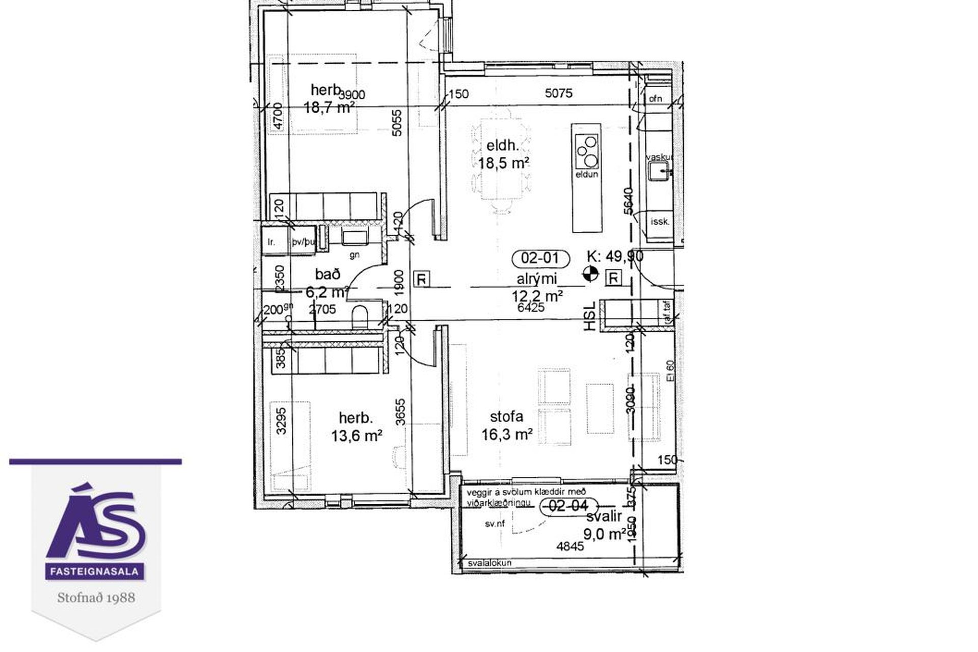
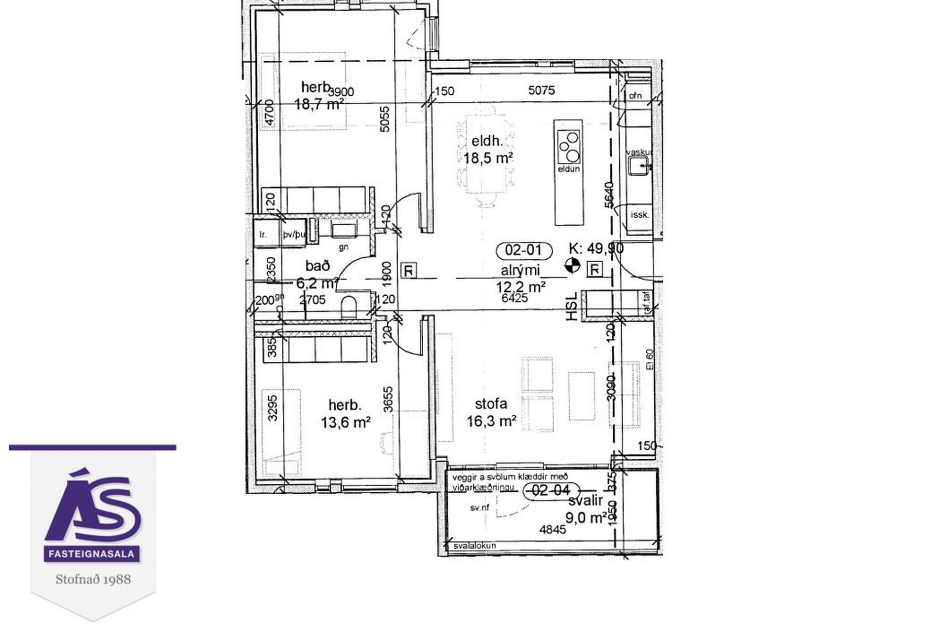
PRIMA fasteignasala og Oliver Bergmann lögg.fasteignasali kynna: Falleg og björt 3ja herbergja íbúð á jarðhæð í Urriðaholti í Garðabæ með stórum herbergjum, stórri stofu þar sem eldhús er hluti af opnu rými og útgengt á vestur pall, fallegu baðherbergi með tengi fyrir þvottavél og þurrkara, og 9 fm sérgeymsla í sameign.
Vel staðsett eign þar sem stutt er í helstu þjónustu og verslanir. Snyrtileg sameign og er lóðin í kringum húsið vel hirt og snyrtileg.
Fordæmi er fyrir dýrahaldi í húsinu.
SJÁ MYNDBAND AF EIGN (VIDEO)SMELLTU HÉR TIL AÐ BÓKA SKOÐUN / FÁ SENT SÖLUYFIRLITNánar um eignina:Forstofa er með mjög rúmgóðu loftháum skápum og harðviðarparket á gólfi.
Eldhús er með góðri dökkri innréttingu, tengi fyrir uppþvottavél. Eldhúseyja með fallegri borðplötu og stórum háf.
Stofa Er í alrými með eldhúsi og borðstofu. Harðparket á gólfi. Útgengt er á lokaðan pall/sérafnotareit.
Hjónaherbergi er bjart og mjög rúmgott með góðum fataskáp, harðviðarparketi á gólfi.
Svefnherbergi er bjart með góðum fataskáp og harðviðarparketi á gólfi.
Baðherbergi er rúmgott með góðri innréttingu með tengi fyrir þvottavél og þurrkara, innangengri stórri sturtu, upphengdu salerni og flísalagt gólf.
Eigninni fylgir 9 fm
sérgeymsla í sameign.
Vagna- og hjólageymsla í sameign.
Allar innréttingar eru hannaðar af innanhúshönnuðunum Berglindi Berndsen og Helgu Sigurbjarnardóttur. Innréttingarnar eru sérsmíðaðar frá Formus. Eldhúsinnrétting og fataskápar eru með dökkri viðarharðklæðningu frá Egger með mattri áferð. Allar brautir og lamir eru með ljúflokun frá BLUM.
Leikskóli í byggingu í göngufæri frá íbúðinni.
Komin eru tengi fyrir rafmagnsbíla á bílaplani.
Þetta er mjög falleg eign á rólegum og eftirsóttum stað í Garðabænum.
Nánari upplýsingar veitir:Oliver Bergmann löggiltur fasteignasali / s.
787 3505 /
oliver@primafasteignir.is__________________________________________________________________________________________
Um skoðunar- og aðgæsluskyldu:
Í lögum um fasteignakaup nr. 40/2002 er kveðið á um ríka skoðunarskyldu kaupenda á fasteignum. Væntanlegum kaupendum er bent á að kynna sér vel ástand fasteigna við skoðun og fyrir tilboðsgerð og ef þurfa þykir að leita til sérfræðinga um nánari ástandsskoðun. Almennt getur kaupandi ekki borið fyrir sig að ástand eignar sé annað en það sem hann hefði mátt sjá við slíka skoðun.
Forsendur söluyfirlits:
Söluyfirlit er samið af fasteignasala í samræmi við ákvæði laga nr. 70/2015. Þær upplýsingar sem fram koma í söluyfirliti þessu eru sóttar í opinberar skrár, til seljanda sjálfs og eftir atvikum til húsfélags. Seljandi veitir upplýsingar um eign í samræmi við upplýsingaskyldu laga um fasteignakaup nr. 40/2002, og ábyrgist að þær séu réttar. Fasteignasali sannreynir að þær upplýsingar séu réttar með sjónskoðun á eigninni. Fasteignasali getur ekki fullyrt um ástand og eiginleika þeirra hluta fasteigna sem ekki eru aðgengilegir og sjást ekki berum augum, t.d. lagnir, dren, skólp og þak. Það sama á við um staðhæfingar seljanda eignar um viðhald og einstaka framkvæmdir.
Almennt um fylgifé íbúðarhúsnæðis:
Til fylgifjár íbúðarhúsnæðis teljast varanlegar innréttingar og búnaður sem annaðhvort er skeytt varanlega við fasteignina eða er sérstaklega sniðinn að henni. Þetta á meðal annars við um fastan búnað og lagnir til hitunnar og vatnsmiðlunar, rafmagnsvirki og leiðslur, loftnet og annan móttökubúnað í eigu seljanda, sem fest eru á fasteign, föst gólfteppi og önnur gólfefni sérstaklega tilsniðin, gluggabúnað, bað- og eldhúsinnréttingar og tæki og vélar sem eru sérstaklega felld inn í innréttingarnar og verða hluti af þeim og aðra innbyggða hluta.
Um ástand einstakra eignarhluta:
Efst í söluyfirlitli þessu er að finna dálka um ástand einstakra hluta eignarinnar. Eftirfarandi lykil er til skýringar á þeirri skráningu:
Nýtt - Eignin er nýbygging.
Upprunalegt - Seljandi veit ekki til þess að byggingarhluti hafi verið endurnýjaður.
Endurnýjað - Byggingarhlutinn hefur verið endurnýjaður í heild sinni á einhverjum tímapunkti.
Endurnýjað að hluta - Hluti byggingarhlutans hefur verið endurnýjaður á einhverjum tímapunkti.
Ekki vitað - Seljandi þekkir ekki til ástands og ekki er hægt að leggja mat á það með sjónskoðun.
Gjöld sem kaupandi þarf að standa straum af vegna kaupanna:
Stimpilgjald af kaupsamningi sem er hlutfall af fasteignamati. Stimpilgjald er 0,8% fyrir einstaklinga (0,4% við fyrstu kaup) og 1,6% fyrir lögaðila.
Þinglýsingargjald af kaupsamningi, veðskuldabréfum, veðleyfum o.fl. Þinglýsingargjald er kr. 2.700,- fyrir hvert skjal.
Lántökugjald lánastofnunar. Um lántökugjald vísast í gjaldskrá viðkomandi lánveitanda.
Umsýsluþóknun fasteignasölu skv. gjaldskrá.
Ef um nýbyggingu er að ræða greiðir kaupandi skipulagsgjald, 0,3% af brunabótamáti, þegar það er lagt á.
Yfirlýsing seljanda:
Seljandi/eigandi lýsir því yfir að efni söluyfirlitsins er rétt samkvæmt bestu vitund hans og staðfestir það með undirritun sinni.