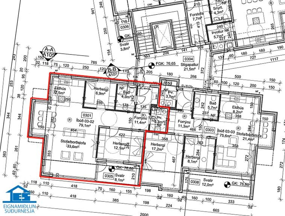
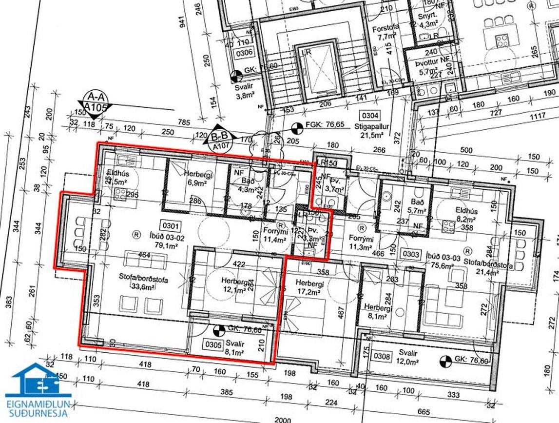
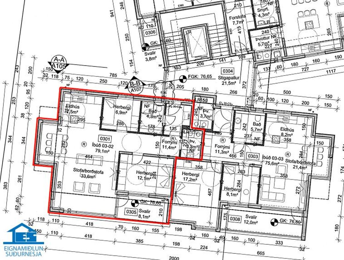
Íbúð
Íbúð á 3. hæð í 10 íbúða lyftuhúsi frá 2017. Opinn stofu- og eldhúsrými með svalir, tvö svefnherbergi með skápum, baðherbergi með flísum og þvottahús innan íbúðar.
Stofa
Opið alrými með parketgólfi og útgangi á suðvestursvalir með glersvalalokun. Bjart rými með einstöku útsýni.
Eldhús
Sérsmíðuð viðarinnrétting frá Parka, kvartssteinsborðplötur, innbyggð uppþvottavél, ofn í vinnuhæð og eldhúseyja sem aðskilur eldhús og borðstofa.
Svefnherbergi
Tvö svefnherbergi með parketgólfi og góðum fataskápum.
Baðherbergi
Flísaleg gólf og veggir, sturtu, handklæðaofn og viðarinnrétting með skápi.
Þvottahús
Þvottahús innan íbúðar með flíslegu gólfi, plássi fyrir þvottavél og þurrkara undir borðplötu, skáparými fyrir ofan.
Geymsla
Rúmgóð sérgeymsla með hillum og geymslulofti í tengslum við bílastæðið. Sameiginleg vagna- og hjólageymsla á 1. hæð.
Bílskúr
Sérmerkt bílastæði í lokuðum bílakjallara með rafhleðslustöð. Inn af stæðinu er stór sérgeymsla.
Garður
Sameiginlegur fallegur og vel hannaður garður með útivistarsvæði á 2. hæð.
Svalir/þak
Svalir með suðvesturátt, gúmmíhellum á gólfi og glersvalalokun.
Félagssvæði
Sameiginlegur garður, rúmgóð lyfta, vagna- og hjólageymsla, verkfærageymsla, ruslageymsla og 10 utanaðkomandi bílastæði.
Tæki
Innbyggð uppþvottavél, ofn í eldhúsi. Pláss fyrir þvottavél og þurrkara í þvottahúsi.
Svæði
Stutt í skóla, kaffihús, golfvöll og náttúruleiðir. Nálægt stofnleiðum og þjónustu.