RE/MAX & BJARNÝ BJÖRG KYNNA í sölu: Fallegt og vel skipulagt sumarhús við Hofsvík 2, 805 Selfoss. Húsið er skráð 73,8 fm samkvæmt þjóðskrá Íslands og er með tveimur svefnherbergjum og tveimur baðherbergjum. Húsið er með gólfsíum gluggum sem gerir það einstaklega glæsilegt og bjart.
Allar nánari upplýsingar um eignina veitir:
Bjarný Björg Arnórsdóttir, löggiltur fasteignasali í síma 694-2526 eða á netfangið bjarny@remax.isUm er að ræða hús sem er stálgrindar einingahús með tveimur svefniherbergjum, tveimur baðherbergjum, eldhúsi/borðstofu/stofu, mikilli lofthæð og gólfsíðum gluggum og fallegu útsýni. Hiti í gólfi frá Danfoss. Hallogen ljós í loftinu. Pallur með skjólvegg. Öryggisgler er í öllu húsinu, Rafmagns heitur pottur og sauna. Húsið er sett saman af Gunnarsfell Verktakar.
# SMELLTU HÉR TIL ÞESS AÐ SJÁ MYNDBAND AF EIGNINNIEignin er skráð sem sumarhús í Grímsnesi nánar tiltekið í Hraunborgum í landi Sjómannadagsráðs sem er um 45 mín akstur frá Reykjavík.
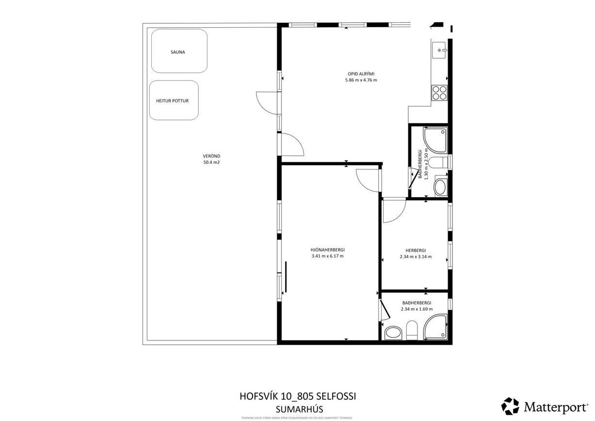
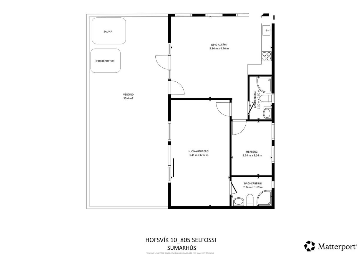
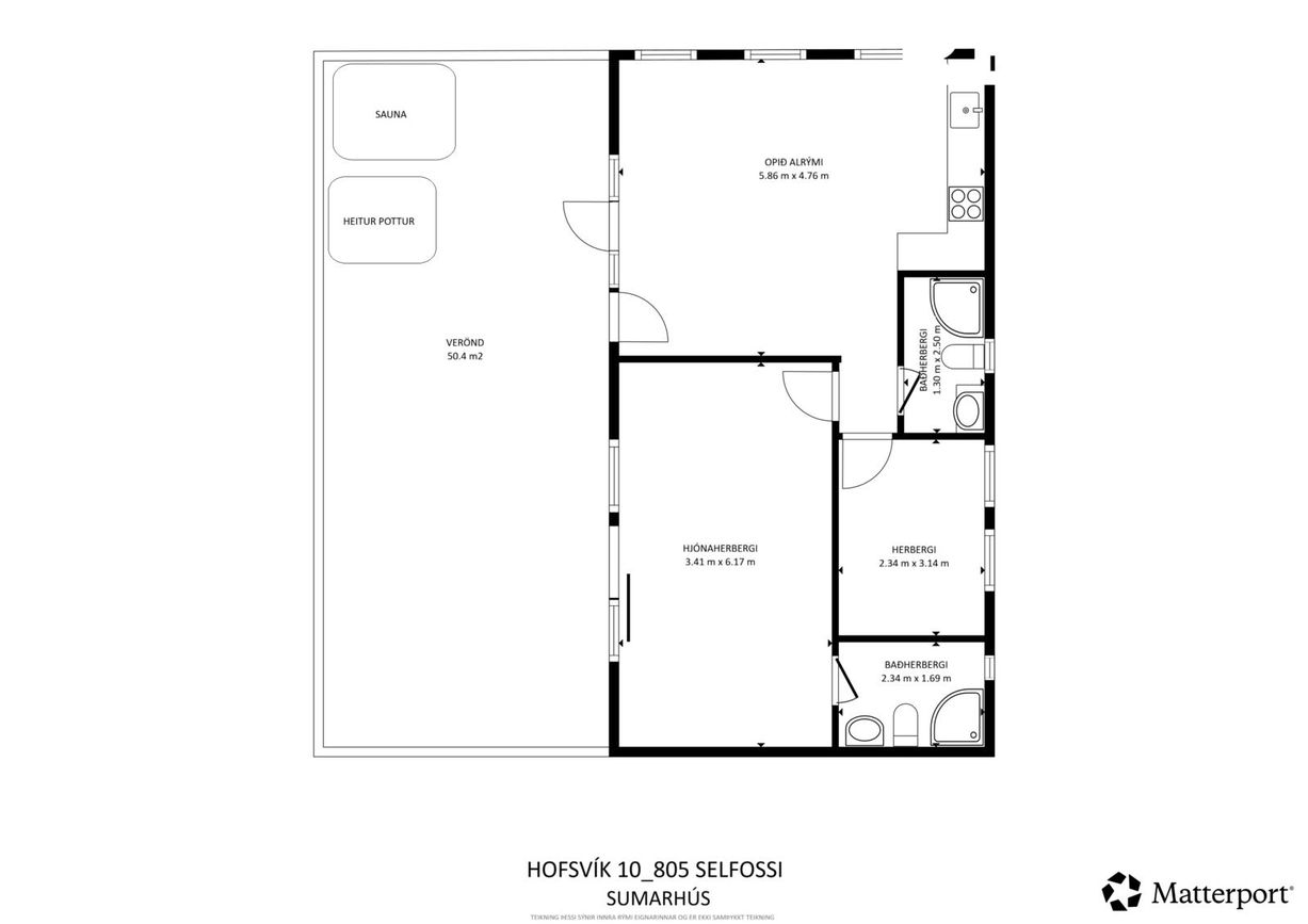
Nánari lýsing: Inngangur: Gengið beint inní stofu/borðstofu með harð parketi á gólfi og gólfsíðum gluggum sem snúa til suðurs, mikilli lofthæð og fallegu útsýni.
Eldhús/borðstofa: Innrétting með tengi fyrir bakarofni, helluborð að gerðinni Vatti, vifta og vaskur.
Hjónaherbergi: Með plastparketi, gólfsíðum gluggum og hurð út á pall, innaf herbergi er baðherbergi með sturtuklefa, baðinnréttingu með vask og upphengt salerni. Físar á gólfi og veggjum.
Herbergi: með plastparketi.
Baðherbergi: Baðinnrétting, Salernið er upphengt. Gólfið er flísalagt og veggir upp í loft, sturtuklefi.
Skriðkjallari: Undir öllu húsinu
Annað:
# Lóðin er fallega staðsett með fallegu útsýni.
# Öryggishlið inn á svæði og öflugt sumarhúsafélag.
# Rotþró í jörðu. Rafmagn tengt. Vegur og bílastæði.
# Lóðarleiga er rúmlega 134.493.kr á ári
# Sumahúsfélegsgjald er um 20.000.kr á ári. Innfalið í því er reglulegur snjómokstur sem þýðir að hægt er að nota húsið yfir allt árið.
Stutt er í allskyns afþreyingu, útivstarsvæði og þjónustu. Á svæðinu eru t.d. sundlaug með heitum potti og eimbaði, hjólhýsastæði, æfingagolfvöllur, minigolf, sparkvöllur, leiksvæði fyrir börn og verslun sem starfrækt er að sumarlagi. Stærri golfvöllur, verslanir og margt fleira er svo í nokkura mínútna akstursfjarlægð
Allar nánari upplýsingar um eignina veitir:
Bjarný Björg Arnórsdóttir, löggiltur fasteignasali í síma 694-2526 eða á netfangið bjarny@remax.isUm skoðunar- og aðgæsluskyldu kaupenda:Í lögum um fasteignakaup nr. 40/2002 er kveðið á um ríka skoðunarskyldu kaupenda á fasteignum. Vill því RE/MAX skora á væntanlega kaupendur að kynna sér vel ástand fasteigna fyrir kauptilboðsgerð og leita til þar til bærra sérfræðinga um nánari skoðun ef með þarf.
Forsendur söluyfirlits: Söluyfirlit er samið af fasteignasala í samræmi við ákvæði laga nr. 70/2015. Þær upplýsingar sem fram koma í söluyfirliti þessu eru sóttar í opinberar skrár, til seljanda sjálfs og eftir atvikum til húsfélags. Seljandi veitir upplýsingar um eign í samræmi við upplýsingaskyldu laga um fasteignakaup nr. 40/2002. Fasteignasali sannreynir að þær upplýsingar séu réttar með sjónskoðun á eigninni. Fasteignasali getur ekki fullyrt um ástand og eiginleika þeirra hluta fasteigna sem ekki eru aðgengilegir og sjást ekki berum augum, t.d. lagnir, dren, skólp og þak.
__________________________
Gjöld sem kaupandi þarf að standa straum af vegna kaupanna: 1. Stimpilgjald af kaupsamningi er af heildarfasteignamati - Einstaklingar 0,8% - Fyrstu kaupendur 0,4% - Lögaðilar 1,6%.
2. Þinglýsingargjald af kaupsamningi, veðskuldabréfi, veðleyfi og fl. 2.700 kr. af hverju skjali.
3. Lántökugjald lánastofnunar - almennt 45-75 þús.kr. Nánari upplýsingar á heimasíðu lánastofnana.
4. Umsýslugjald til fasteignasölu 69.900 kr. m.vsk