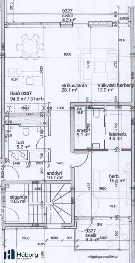
Háborg kynnir: Íbúð 307 glæsilega útsýnisíbúð á þriðju hæð í Stuðlaborg á Kirkjusandi. Stórbrotið óhindrað sjávarútsýni þar sem sólarlagið svíkur engan. Birt flatarmál er 105,6 fm þar af er 10,7 fm geymsla í kjallara. Grunnar 4,3 fm vestursvalir meðfram allri vesturhlið íbúðarinnar og 6,8 fm svalir til suðausturs. Eignin telur, anddyri, baðherbergi með sturtu og aðstöðu fyrir þvottavél og þurrkara. Glæsilega hjónasvítu með fataherbergi og baðherbergi með baðkeri. Mjög rúmgóða stofu með opnu eldhúsi. Hægt er að bæta við svefnherbergi á kostnað stofu. Vandaðar innréttingar, gólfsíðir gluggar, gólfhiti og steinn í borðum.
Allar frekari upplýsingar gefur Þórunn Pálsdóttir lgf s:773-6000 og thorunn@haborg.is
Stuðlaborg er 77 íbúða bygging í 5 stigagöngum glæsilega hönnuð af hinni þekktu dönsku arkitektastofu Schmidt/Hammer/Lassen í samstarfi við VA arkitekta.
Gengið er inn í rúmgott anddyri með góðum skápum. Á hægri hönd er glæsileg hjónasvíta með fataherbergi og og baðherbergi inn af með baðkeri. Úr hjónaherbergi er gengið út á suðaustursvalir sem snúa inn í garð.
Á vinstri hönd er gott baðherbergi með sturtu og aðstöðu fyrir þvottavél og þurrkara. Góð innrétting sem gerir ráð fyrir vélum í vinnuhæð.
Næst er glæsilegt alrými með stórbrotnu óhindruðu sjávarútsýni til norðvesturs. Hér er sólarlagið töfrandi.
Eldhúsið er opið og með eldhúseyju. Eldhústæki eru vönduð frá Simens. Innbyggður ísskápur og uppþvottavél fylgja.
Stofurýmið er rúmgott og glæsilegt og skv. teikningum er valkvætt að minnka það og bæta við um 11,7 fm herbergi.
Allar innréttingar eru glæsilegar spónlagðar, stílhreinar með gripi en ekki höldum. Hurðir eru gerettalausar og sérlega fallegar. Íbúðinni fylgir hlutdeild í Y6-sameign sumra sem er bílgeymslurými í kjallara. Það tengist bílgeymslurýmum undir aðliggjandi lóðum og sér sameiginlegt rekstarfélag um rekstur bílageymslunnar. Íbúar geta lagt í bílageymslu gegn hóflegu rekstargjald sem er nú umkr 9000 á mánuði.
Glæsileg og heillandi útsýnisíbúð á þessum vinsæla stað, sem er í göngufæri við útivistarperluna í Laugardal og falleg gönguleið meðfram strandlengjunni er til miðborgarinnar.
Nánari upplýsingar veitir: Þórunn Pálsdóttir lgf s:773-6000 og thorunn@haborg.is