************
Um skoðunar- og aðgæsluskyldu:
Í lögum um fasteignakaup nr. 40/2002 er kveðið á um ríka skoðunarskyldu kaupenda á fasteignum. Fasteignasalan Hákot bendir væntanlegum kaupendum á að kynna sér vel ástand fasteigna við skoðun og fyrir tilboðsgerð og ef þurfa þykir að leita til sérfræðinga um nánari ástandsskoðun.
Forsendur söluyfirlits:
Söluyfirlit er samið af fasteignasala í samræmi við ákvæði laga nr. 70/2015. Þær upplýsingar sem fram koma í söluyfirliti þessu eru sóttar í opinberar skrár, til seljanda sjálfs og eftir atvikum til húsfélags. Seljandi veitir upplýsingar um eign í samræmi við upplýsingaskyldu laga um fasteignakaup nr. 40/2002. Fasteignasali metur eignina með sjónskoðun.
Fasteignasali getur ekki fullyrt um ástand og eiginleika þeirra hluta fasteigna sem ekki eru aðgengilegir og sjást ekki berum augum, t.d. lagnir, dren, skólp og þak.
Gjöld sem kaupandi þarf að standa straum af vegna kaupanna:
1. Stimpilgjald af kaupsamningi - 0.8% af heildar fasteignamati / 1.6% fyrir lögaðila, (0.4% við fyrstu kaup einstaklinga).
2. Þinglýsingagjald af kaupsamningi, afsali, veðskuldabréfi, umboði, veðleyfi o.fl.- kr. 2.700 af hverju skjali.
3. Umsýslugjald kr. 49.600 (m/vsk).
4. Lántökugjald veðskuldabréfa samkvæmt gjaldskrá lánveitenda.
5. Ef um nýbyggingu er að ræða greiðir kaupandi skipulagsgjald, 0,3% af brunabótamáti, þegar það er lagt á






Kíktu á dæmið með Aurbjörgu



























| Íbúð | Herbergi | Stærð | Síðasta ásetta verð | Síðasti kaupsamningur |
|---|---|---|---|---|
| 3 | 107,10 m² | 63.900.000 kr. 18. apríl 2026 | 44.900.000 kr. 7. mars 2022 |
| Dags. | Kaupverð |
|---|---|
| 7. mars 2022 | 44.900.000 kr. |
| 8. maí 2007 | 21.900.000 kr. |
| Dags. | Stærð | Fermetraverð | Ásett |
|---|---|---|---|
| 18.04.2026 Nánar | 107,1 m² | 596.639 kr. | 63.900.000 kr. |
| 17.04.2026 Nánar | 107,1 m² | 596.639 kr. | 63.900.000 kr. |
| 16.04.2026 Nánar | 107,1 m² | 596.639 kr. | 63.900.000 kr. |
| 07.04.2026 Nánar | 107,1 m² | 596.639 kr. | 63.900.000 kr. |
| 4 | 107,80 m² | 54.900.000 kr. 5. febrúar 2023 | 54.900.000 kr. 3. mars 2023 |
0103 ![]() | 3 | 91,80 m² | 56.500.000 kr. 16. október 2025 | 54.000.000 kr. 28. nóvember 2025 |
0104 | - | - | - | 19.573.000 kr. 15. júní 2015 |
0201 | - | - | - | 40.700.000 kr. 1. mars 2021 |
| 4 | 107,10 m² | 63.500.000 kr. 12. febrúar 2026 | 24.500.000 kr. 4. september 2014 |
| 3 | 91,80 m² | 36.900.000 kr. 9. september 2021 | 33.000.000 kr. 8. júní 2018 |
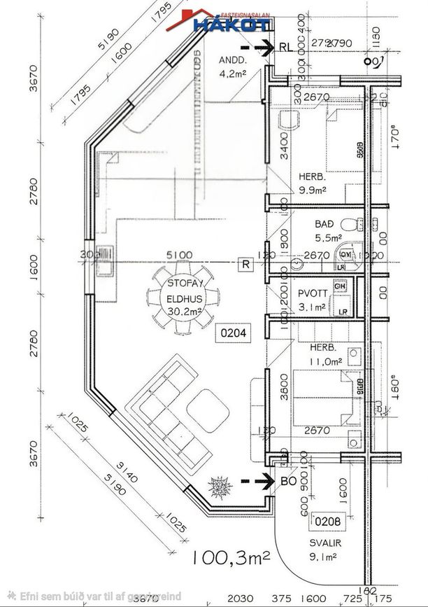
0204 | - | - | - | 41.000.000 kr. 14. janúar 2021 |
0303 | - | - | - | 37.500.000 kr. 24. febrúar 2021 |
0304 | - | - | - | 53.500.000 kr. 22. nóvember 2022 |
0501 | - | - | - | 21.900.000 kr. 9. janúar 2007 |
0502 | - | - | - | 34.500.000 kr. 22. maí 2019 |
0202 | - | - | - | 18.200.000 kr. 17. september 2007 |
0401 | - | - | - | 25.000.000 kr. 7. apríl 2015 |
0402 | - | - | - | 50.000.000 kr. 13. október 2022 |
0403 | - | - | - | 33.000.000 kr. 5. desember 2018 |
0302 ![]() | 3 | 92,40 m² | 51.000.000 kr. 5. október 2022 | 33.500.000 kr. 4. október 2018 |
0404 | - | - | - | 21.900.000 kr. 30. júlí 2007 |
0203 | - | - | - | 35.900.000 kr. 24. september 2021 |

































0503 | - | - | - | 28.500.000 kr. 10. febrúar 2018 |