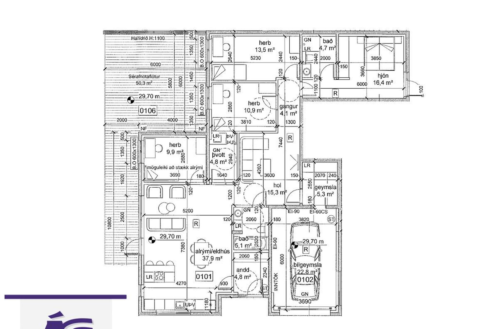
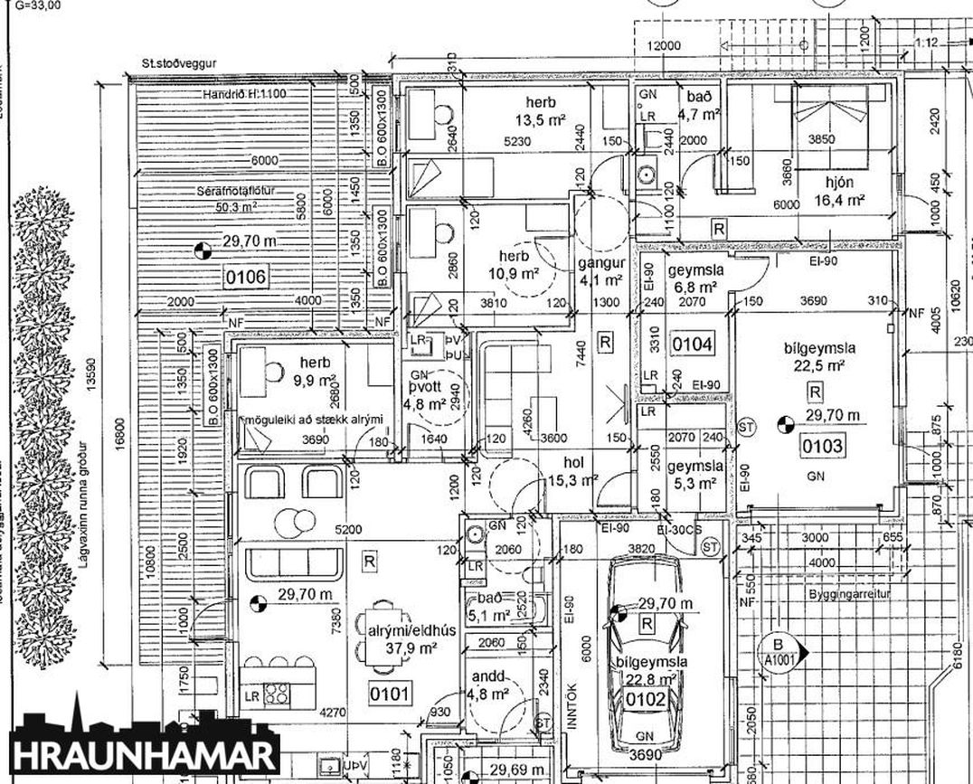
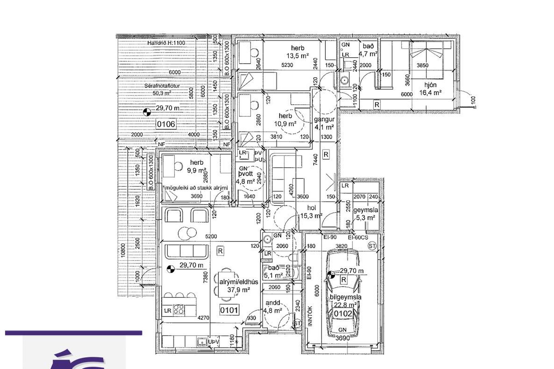
Hraunhamar kynnir glæsilega neðri sérhæð í tvíbýlishúsi vel staðsett í Skarðshlíðinni. Hæðin er 155,3 fermetrar að auki er bílskúr 27,1 fermetrar, samtals 182,4 fermetrar.
✔ Glæsileg og vel innréttuð hæð.
✔ 4 svefnherbergi.
✔ 2 baðherbergi.
✔ Sérafnotaréttur.
Skipting eignarinnar: Forstofa, hol, stofa, borðstofa, sjónvarpshol, fjögur svefnherbergi, tvö baðherbergi, þvottahús, geymsla og bílskúr.
Lýsing eignar: Forstofa með fataskápum.
Gott hol.
Eldhús með smekklegri innréttingu, steinn á borðum, innbyggður ísskápur og uppþvottavél.
Björt
stofa og
borðstofa og þaðan er utangengt út í garðinn.
Gott
sjónvarpshol. 3 rúmgóð barnaherbergi, öll með fataskáp.
Stórt og gott
hjónaherbergi með fataskápum. Inn af hjónaherberginu er fallegt flísalagt baðherbergi með innréttingu og handklæðaofn.
Flísalagt
baðherbergi með innréttingu, baðkari og handklæðaofn.
Gott
þvottahús.Geymsla og þaðan er innangengt í bílskúrinn. Hann er með heitu og köldu vatni.
Lóðin er malarborin og eigninni fylgir góður sérafnotaréttur.
Gólfefni er harðparket og flísar.
Þetta er einstaklega falleg og vel skipulögð hæð og nýtist mjög vel. Vönduð eign sem vert er að skoða.
Nánari upplýsingar veitir Hlynur Halldórsson löggiltur fasteignasali s.6982603, hlynur@hraunhamar.is
Skoðunarskylda:Í lögum um fasteignakaup nr. 40/2002 er kveðið á um ríka skoðunarskyldu kaupenda á fasteignum. Hraunhamar fasteignasala vill benda væntanlegum kaupendum á að kynna sér vel ástand fasteigna fyrir kauptilboðsgerð og ef þurfa þykir að leita til sérfræðinga fyrir nánari ástandsskoðun.
Gjöld sem kaupandi þarf að standa straum af vegna kaupanna:1. Stimpilgjald af kaupsamningi, fyrstu kaup (0,4%), almenn kaup (0,8%), lögaðilar (1,6%) af heildarfasteignamati.
2. Þinglýsingargjald af kaupsamningi, veðskuldabréfi, mögulegu veðleyfi o.fl. – kr. 3,800 af hverju skjali.
3. Lántökugjald lánastofnunar er skv. verðskrá viðkomandi lánastofnunar.
4. Umsýslugjald til fasteignasölu skv. þjónustusamningi
Hraunhamar er elsta fasteignasala Hafnarfjarðar, stofnuð 1983.
Hraunhamar, í fararbroddi í rúm 40 ár. – Hraunhamar.is
Smelltu hér til að fá frítt söluverðmat.