Gimli fasteignasala og Herdís Valb. Hölludóttir kynna: Fallega og rúmgóða, 94.8 fm 3ja herbergja íbúð í kjallara með sérinngangi á Grenimel 32, 107 Reykjavík.
Húsið er steinsteypt og staðsett á eftirsóttu stað í vestubænum, nálægt leikskóla, skóla, háskóla, verslun og Vesturbæjarlauginni.
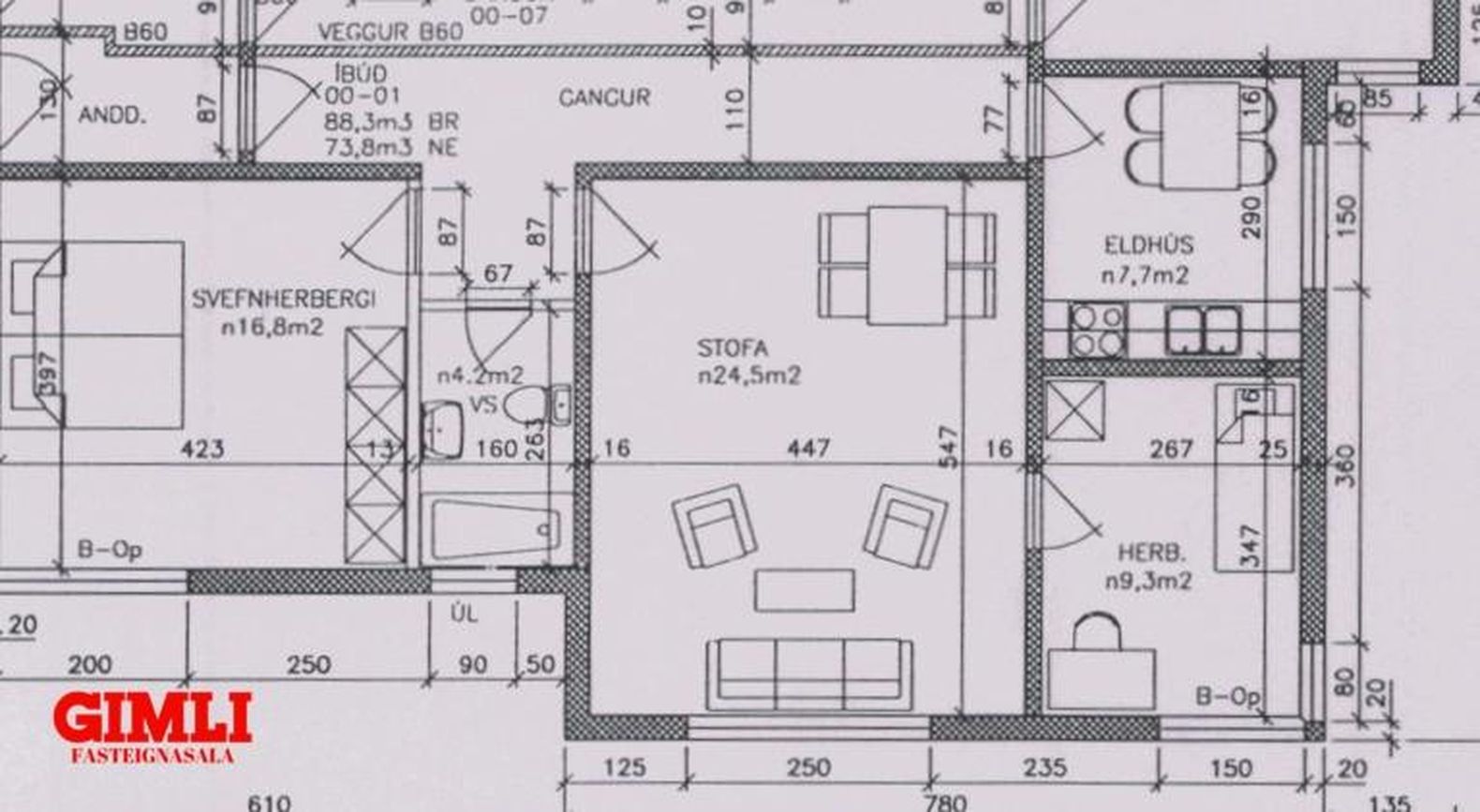
Eignin skiptist í forstofu, hol, tvö svefnherbergi, eldhús, stofu, baðherbergi, geymslu og sameiginlegt þvottaherbergi.
Bókið skoðun hjá Herdísi í síma 694-6166, eða herdis@gimli.isNÁNARI LÝSING:
Forstofa: Flísar á gólfi og fatahengi.
Hol: Parket á gólfi og fataskápur.
Svefnherbergi l: Rúmgott með parketi á gólfi og fataskáp.
Svefnherbergi ll: Parket á gólfi.
Baðherbergi: Flísar á gólfi og hluta af veggjum, innrétting með viðarborði, handklæðaofn og rúmgóð sturta með glerþili.
Stofa: Rúmgóð og björt með parketi á gólfi.
Eldhús: Dúkur á gólfi, innrétting endurnýjuð að hluta, innbyggð uppþvottavél og bakarofn.
Geymsla: Er staðsett á sameignlegum geymslugangi fyrir framan þvottaherbergið.
Þvottaherbergi: Rúmgott og bjart með rými fyrir þvottavél og þurrkara.
Samkvæmt upplýsingum húsfélags: ,,Húsið var steinað 2008 og 2007 var grafið frá húsinu og komið fyrir drenlögnum og allar aðfærslu og frárennslislagnir endurnýjaðar utanhúss og að hluta til í kjallara hússins. Lagfæring á þaki 2004 og skipt um þakglugga en leki er á þaki sem þarfnast viðgerðar og gera þarf nýtt ástandsmat á þakinu"Eignin Grenimelur 32 er skráð sem hér segir hjá FMR: Eign
202-7111, birt stærð 94.8 fm. Nánar tiltekið eign merkt 00-01, ásamt öllu því sem eigninni fylgir, þar með talið tilheyrandi lóðar og sameignarréttindi.
Niðurlag: Falleg og rúmgóð 3ja herbergja íbúð með sérinngangi á eftirsóttum stað í vesturbænum.Nánari upplýsingar veitir: Herdís Valb. Hölludóttir Löggiltur fasteignasali og lögfræðingur, í síma 6946166, tölvupóstur herdis@gimli.is eða
gimli@gimli.isGimli fasteignasala leggur áherslu á traust, áreiðanleika og góða þjónustu.Það er okkar trú að það skipti öllu máli í fasteignaviðskiptum að viðskiptavinurinn fái trausta og góða þjónustu. Við hjá
Gimli höfum stundað fasteignaviðskipti með farsælum hætti í meira en fjóra áratugi. Hjá okkur starfa sérhæfðir og reyndir fasteignasalar sem sinna stórum sem smáum verkefnum af nákvæmni og þekkingu sem skilar árangri.
Hvar erum við?
Gimli Fasteignasala er staðsett á jarðhæð í Skipholti 35 í Reykjavík en einnig rekum við söluskrifstofu að Eyrarvegi 29. 2 hæð á Selfossi.
Við höfum opið frá 10-15 mánudaga til föstudaga. Sláðu á þráðinn eða líttu við hjá okkur í Skipholtinu næst þegar þú átt leið hjá. Við erum alltaf með heitt á könnunni. sími:
570 4800, tölvupóstur:
gimli@gimli.isGimli gerir betur...
Heimasíða Gimli fasteignasöluGimli á FacebookUm skoðunar- og aðgæsluskyldu kaupenda: Í lögum um fasteignakaup nr. 40/2002 er kveðið á um ríka skoðunarskyldu kaupenda á fasteignum. Gimli fasteignasala bendir væntanlegum kaupendum á að kynna sér vel ástand eigna við skoðun og fyrir tilboðsgerð og að leita til sérfræðinga um nánari ástandsskoðun ef þörf er á.
Forsendur söluyfirlits: Söluyfirlit er samið af fasteignasala í samræmi við ákvæði laga nr. 70/2015. Þær upplýsingar sem fram koma í söluyfirliti þessu eru sóttar í opinberar skrár, til seljanda sjálfs og eftir atvikum til húsfélags. Seljandi veitir upplýsingar um eign í samræmi við upplýsingaskyldu laga um fasteignakaup nr. 40/2002. Fasteignasali sannreynir að þær upplýsingar séu réttar með sjónskoðun á eigninni. Fasteignasali getur ekki fullyrt um ástand og eiginleika þeirra hluta fasteigna sem ekki eru aðgengilegir og sjást ekki berum augum, t.d. lagnir, dren, skólp og þak.
Gjöld sem kaupandi þarf að standa straum af vegna kaupanna:Stimpilgjald af kaupsamningi sem er hlutfall af fasteignamati. Stimpilgjald er 0,8% fyrir einstaklinga (0,4% við fyrstu kaup m.v. að lágmarki 50% eignarhlut) og 1,6% fyrir lögaðila.Þinglýsingargjald hvers skjals er kr. 2.700,- .Lántökugjald lánastofnunar skv. gjaldskrá viðkomandi lánveitanda.Umsýsluþóknun fasteignasölu skv. gjaldskrá.Ef um nýbyggingu er að ræða greiðir kaupandi skipulagsgjald, 0,3% af brunabótamati, þegar það er lagt á.
Teikningar sem fylgja lýsingu eignarinnar og myndum eru til viðmiðunar og ekki alltaf í samræmi við samþykktar teikningar af eigninni.
Myndir í auglýsingu eru í einkaeigu og er notkun þeirra með öllu óheimil án formlegs leyfis fasteignasala
Gimli fasteignasala leggur áherslu á traust, áreiðanleika og góða þjónustu.
Það er okkar trú að það skipti öllu máli í fasteignaviðskiptum að viðskiptavinurinn fái trausta og góða þjónustu. Við hjá Gimli höfum stundað fasteignaviðskipti með farsælum hætti í meira en fjóra áratugi. Hjá okkur starfa sérhæfðir og reyndir fasteignasalar sem sinna stórum sem smáum verkefnum af nákvæmni og þekkingu sem skilar árangri.
Hvar erum við?
Gimli Fasteignasala er staðsett á jarðhæð í Skipholti 35 í Reykjavík en einnig rekum við söluskrifstofu að Eyrarvegi 29. 2 hæð á Selfossi.
Við höfum opið frá 10-15 mánudaga til föstudaga. Sláðu á þráðinn eða líttu við hjá okkur í Skipholtinu næst þegar þú átt leið hjá. Við erum alltaf með heitt á könnunni.
Gimli gerir betur...