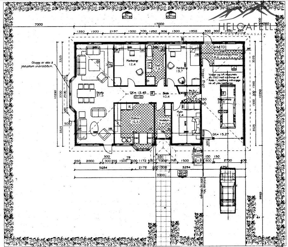
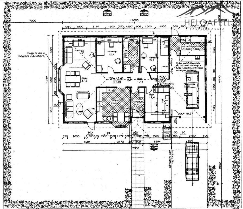
Hólmar Björn Sigþórsson löggiltur fasteignasali og Helgafell fasteignasala kynna í einkasölu Fosstún 6, 800 Selfoss: Fallegt og vel skipulagt 4 herbergja einbýlishús með innbyggðum bílskúr. Húsið er vel staðsett í grónu hverfi miðsvæðis á Selfossi. Heildarstærð eignarinnar er 175.1 fm. og þ.a. er íbúðahluti 132 fm og bílskúr 43.1 fm.
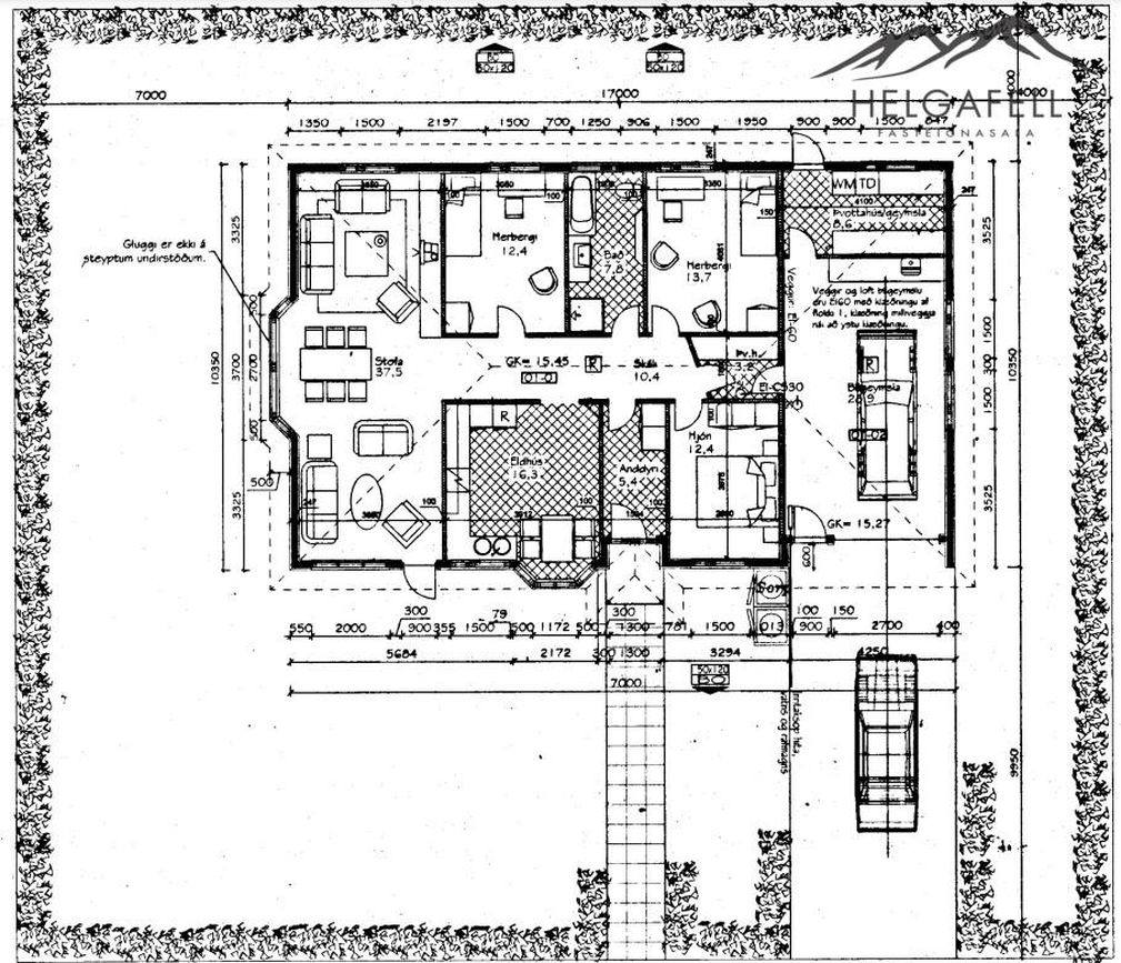
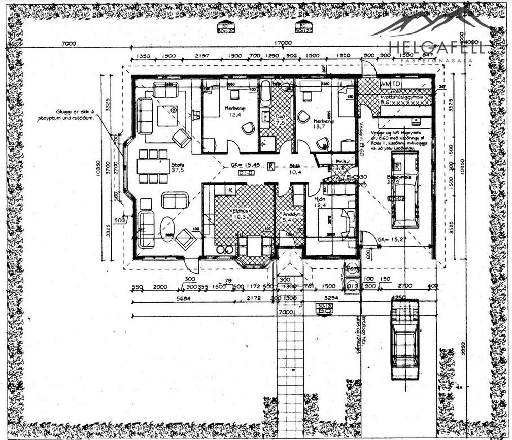
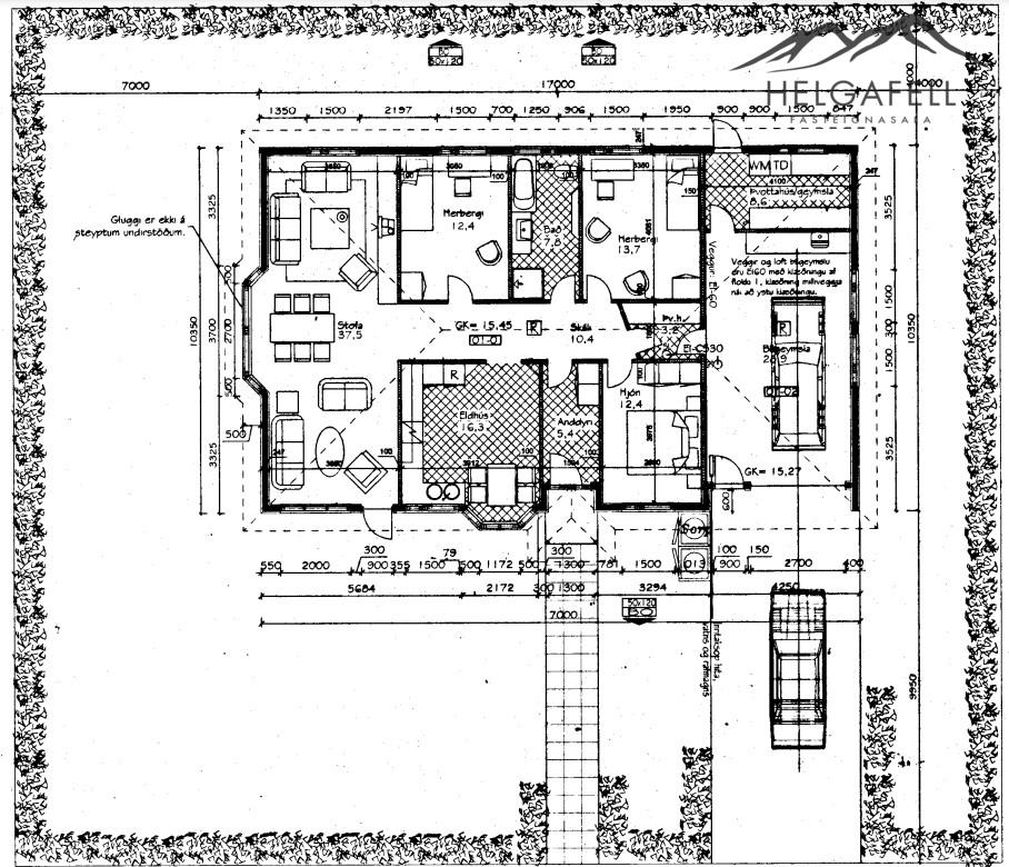
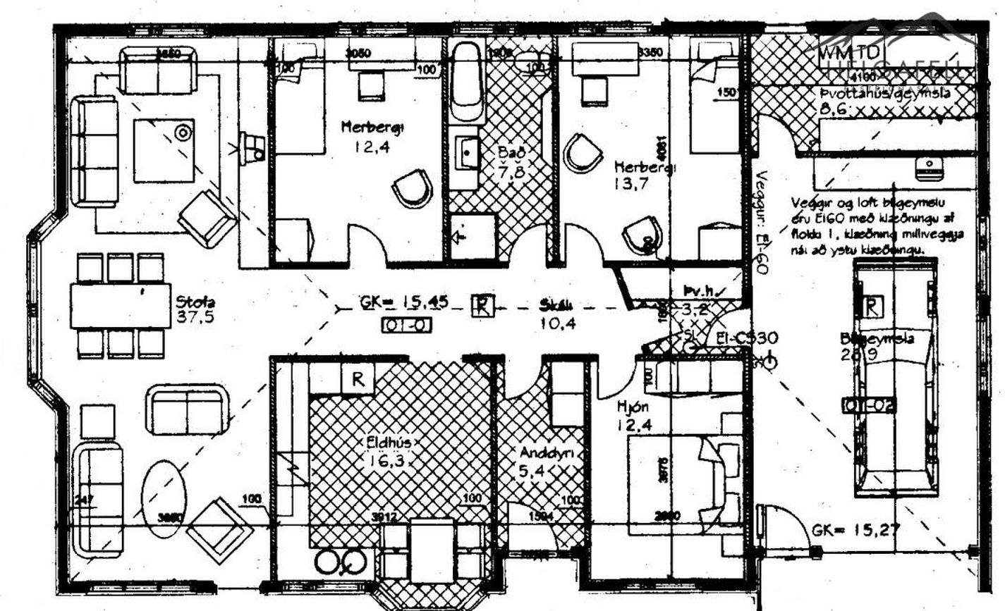
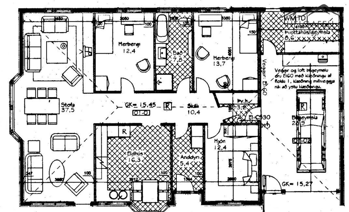
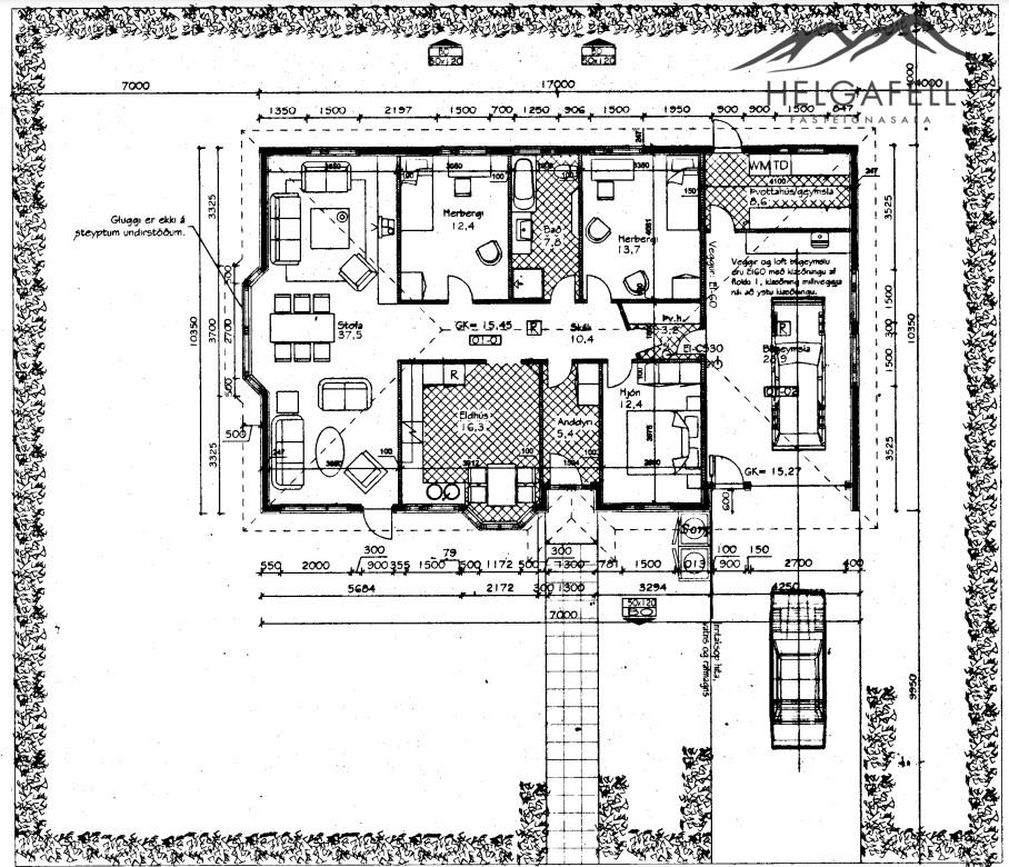
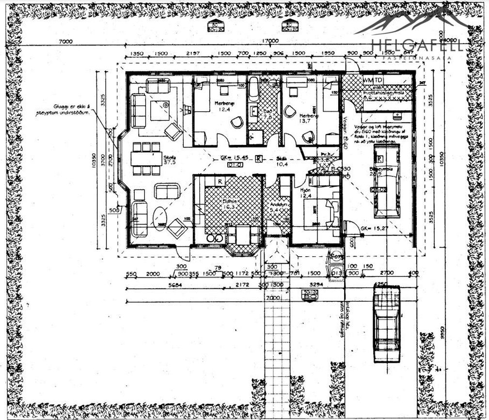
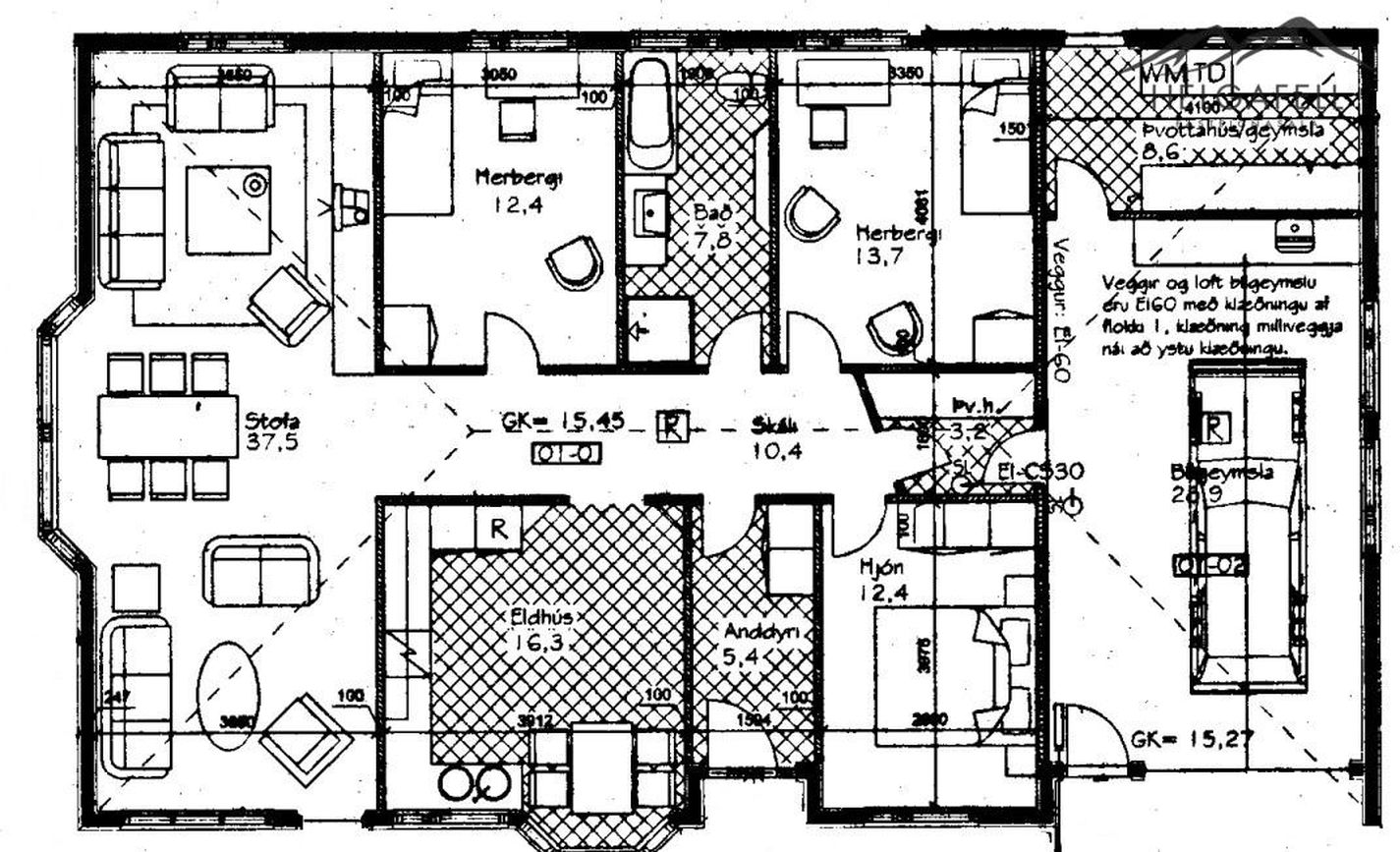
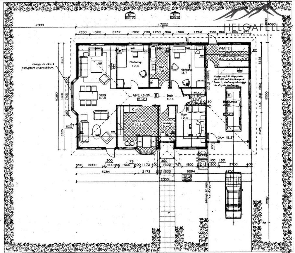
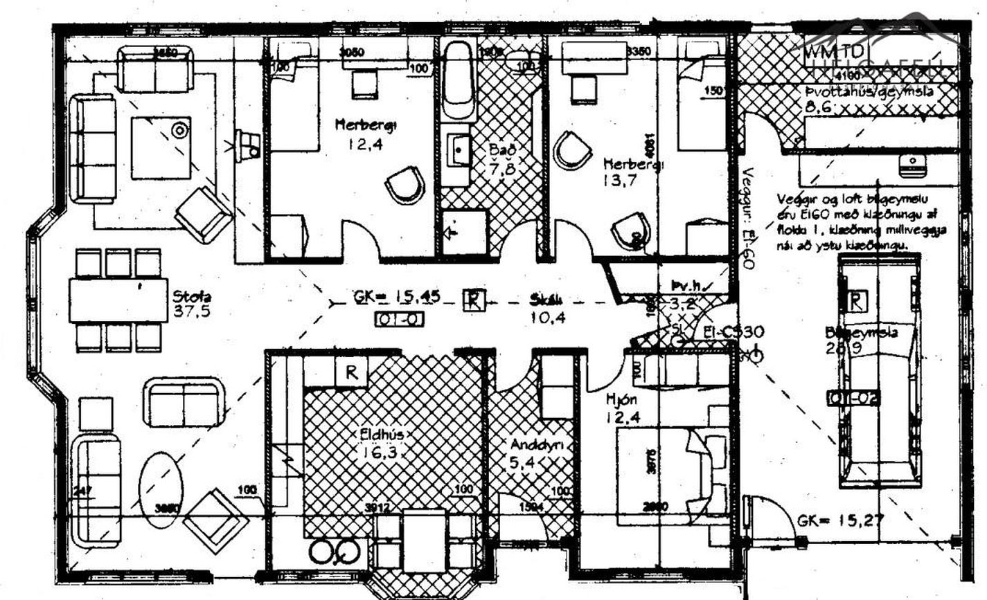
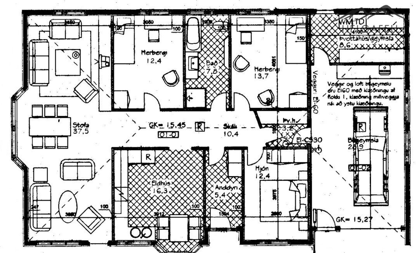
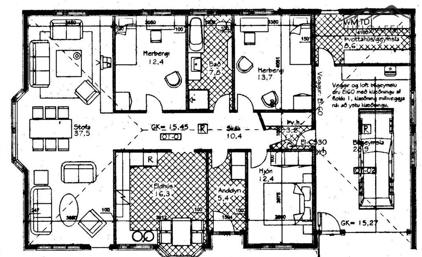
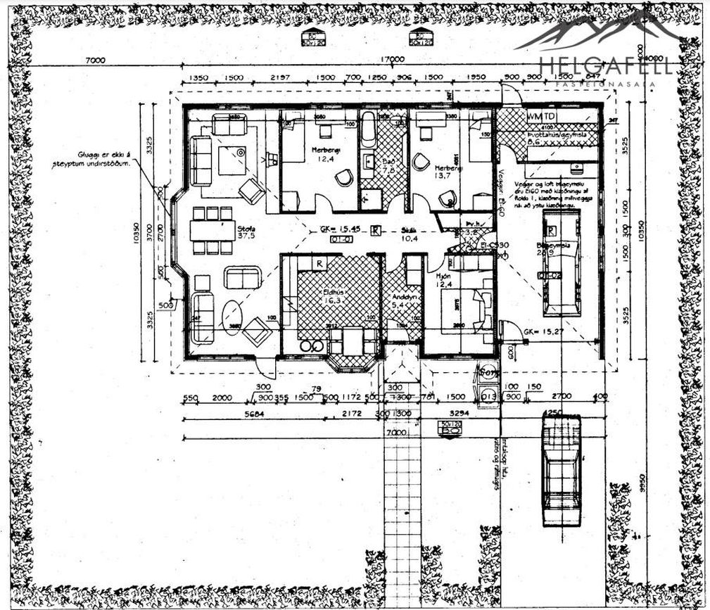
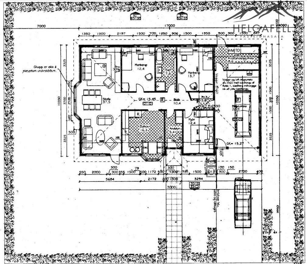
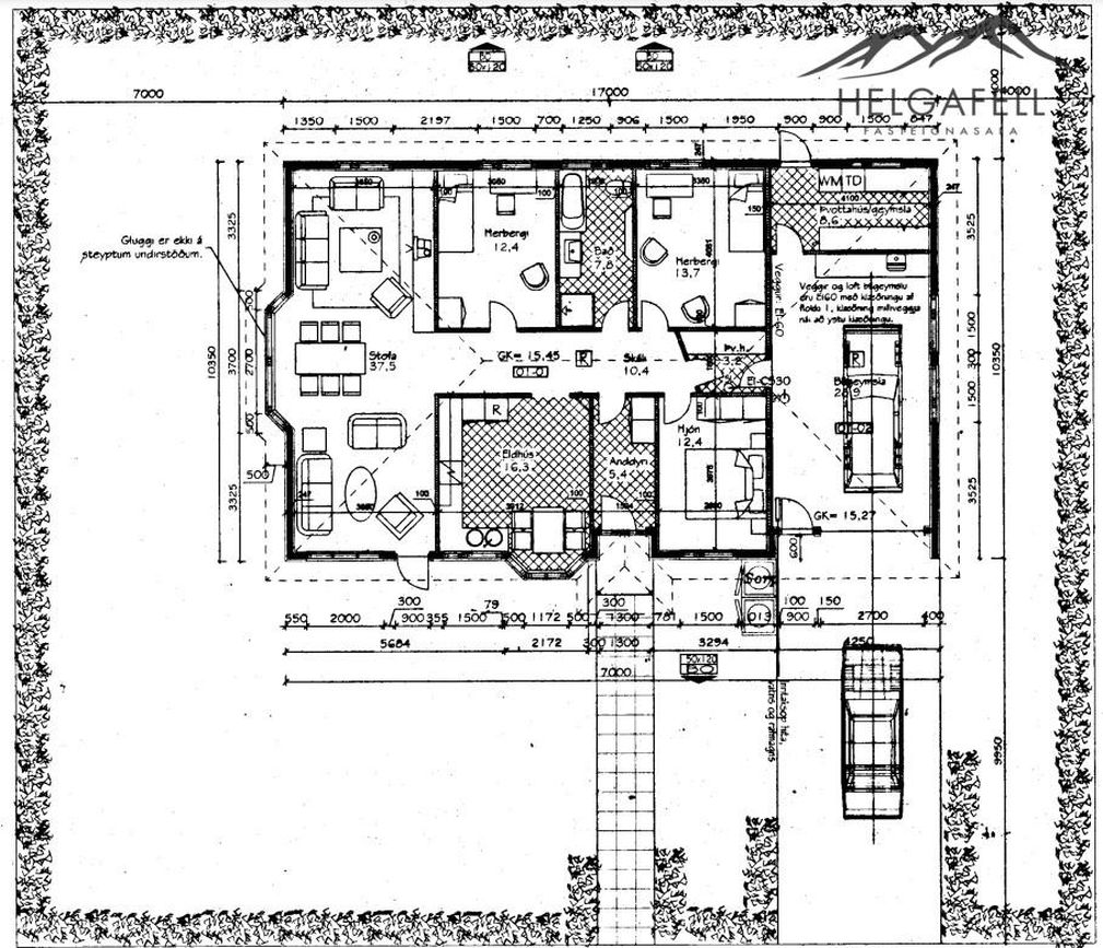
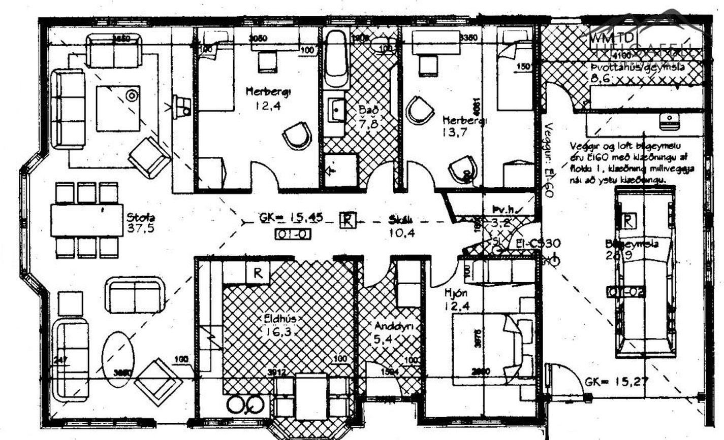
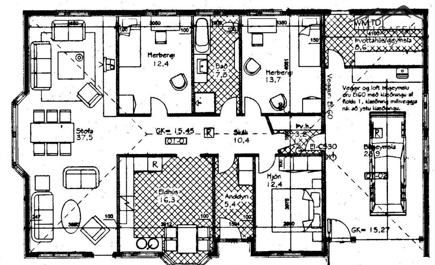
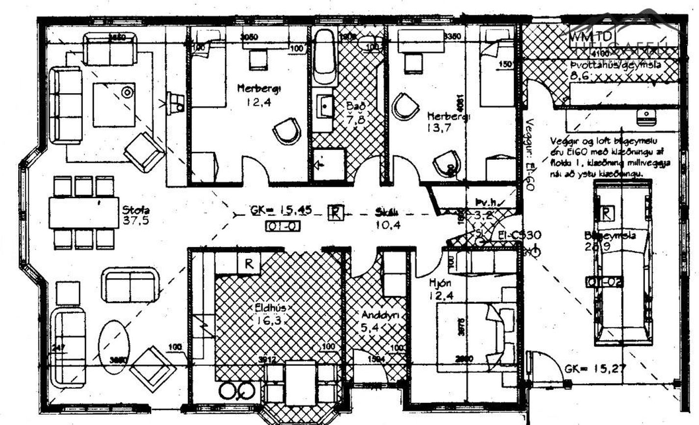
SMELLIÐ HÉR TIL AÐ FÁ SENT SÖLUYFIRLIT STRAXEignin skiptist í forstofu, gangur / hol, stofu / borðstofa, eldhús, 3 svefnherbergi, baðherbergi, þvottahús, bílskúr og geymslu.
Nánari lýsing:Forstofa: Komið er inn í rúmgóða forstofu, flísar á gólfi.
Stofan / borðstofa: Stór og björt, gönguhurð út á suðurvestur verönd, físar á gólfi.
Eldhús: Með góðri innréttingu, borðkrókur, útskotsgluggi, háfur, spanhelluborð, bakaraofn, uppþvottavél sem fylgir með, flísar milli skápa, parket á gólfi.
Hjónaherbergi: Rúmgott, góðir fataskápar með ljósum, flísar á gólfi.
Svefnherbergi 2: Rúmgott, góðir fataskápar með ljósum, flísar á gólfi.
Svefnherbergi 3: Inn af forstofur, innfelldur fataskápur, flísar á gólfi.
Gangur / hol: Flísar á gófli.
Baðherbergi: Rúmgott, góð innrétting og speglaskápar, baðker og walk in sturta, flísar á gólfi og veggjum.
Þvottahús: Með vinnuborði og skápum, skolvaskur, innangengt í bílskúr, flísar á gólfi.
Bílskúr og geymsla: Er 43.1 fm, heitt og kalt vatn, gönguhurð út á framhlið og út á baklóð úr geymslu, bílskúrshurðaopnari, skápur, flísar á gólfi.
Húsið: Er byggt 2002 og er timburhús klætt með lituðu Duropal, þak er valmaþak klætt með bárujárni. Hiti er í gólfum. Gluggar að utan og vindskeiðar voru málaðar 2023. Klæðning á húsi var máluð 2022.
Lóð: Lóðin er 680.6 fm. eignarlóð. Fallegur og gróinn garður. Framan við húsið er stór steypt innkeyrsla (mynstursteypt), steypt verönd klædd gervigrasi með skjólveggjum.
Glæsilegt og vel viðhaldið fjölskylduhús á góðum stað þar sem stutt er að ganga í miðbæ Selfoss og alla helstu þjónustu. Eign sem vert er að skoða.
Nánari upplýsingar og bókun á skoðun gefur Hólmar Björn Sigþórsson, löggiltur fasteignasali og félagsmaður í Félagi fasteignasala í s. 893 3276 eða í netfangið holmar@helgafellfasteignasala.is. ----------------------------------------------------------
Heimasíða Helgafells fasteignasölu
Facebook síða Helgafells
- Hafðu samband og við gerum söluverðmat á eign þinni, þér að kostnaðarlausu -
Gjöld sem kaupandi þarf að standa straum af vegna kaupa á fasteign:
1. Stimpilgjald af kaupsamningi - 0,8% af fasteignamati fyrir einstaklinga (0,4% fyrir fyrstu kaupendur) og 1,6% fyrir lögaðila.
2. Þinglýsingargjald af kaupsamningi, veðskuldabréfi, mögulegu veðleyfi o.fl. - 3.800 kr. af hverju skjali.
3. Lántökugjald lánastofnunar - almennt í kringum 50þ., oft lægra eða ekkert lántökugjald fyrir fyrstu kaup. Nánari upplýsingar á heimasíðum lánastofnana.
4. Þjónustusamningur milli kaupanda og fasteignasölu - Kr. 92.380,- m/vsk.
Helgafell fasteignasala bendir kaupendum á ríka skoðunarskyldu sem kveðið er á í lögum um fasteignakaup nr.40/2002. Skorað er á kaupendur að kynna sér vandlega ástand fasteigna og nýta til þess aðstoð sérfræðinga. Sömuleiðis er bent á upplýsingaskyldu seljanda samanber 26.gr. Laga nr.40/2002 um fasteignakaup og 25.gr. laga nr.26/1994 um fjöleignarhús. Seljanda er bent á að kynna sér tilvitnaðar lagagreinar.