Valborg fasteignasala kynnir nýtt og fullbúið 129,3 fm raðhús við Bröttuhlíð 26 í Mosfellsbæ. Vandað hús á einni hæð á góðum stað miðsvæðis í bænum. Steyptir steinaðir útveggir og aukin lofthæð. Til afhendingar við kaupsamning.Nánari lýsing:Húsið skiptist í stofu, borðstofu, opið eldhús, hjónaherbe... Sýna meira
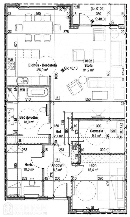
Valborg fasteignasala kynnir nýtt og fullbúið 129,3 fm raðhús við Bröttuhlíð 26 í Mosfellsbæ. Vandað hús á einni hæð á góðum stað miðsvæðis í bænum. Steyptir steinaðir útveggir og aukin lofthæð. Til afhendingar við kaupsamning.Nánari lýsing:Húsið skiptist í stofu, borðstofu, opið eldhús, hjónaherbergi, barnaherbergi, stórt baðherbergi með baðkari og sturtu og innréttingu fyrir þvottavél og þurrkara, anddyri, geymslu og innbyggðan bílskúr. Innréttingar eru eikarinnréttingar sérsmíðaðar frá Brúnás. Gluggar og hurðir úr áli. Gólfefni er vínilparket á öllum rýmum en flísar á gólfi og veggjum í baðherbergi/þvottahúsi. Innihurðir eru eikarhurðir frá Parka. Heimilistæki eru frá Siemens og hreinlætistæki frá Grohe. Háfur í eldhúsi blæs út úr húsi. Heitt neysluvatn er upphitað með forhitara.Lóðin er hellulögð með snjóbræðslu fyrir framan húsið og einnig er hellulögð verönd í garði. Að öðru leyti er garðurinn þökulagður. Þakplatan er staðsteypt með tvöföldum þakpappa, einangrun og þakmöl. Ídráttarrör fyrir heitan pott er frá inntaki í garðinn og ítdráttarrör fyrir bílahleðslustöð í timburvegg framan við hús. Staðsetning eignarinnar er miðsvæðis í rólegri götu. Lágafellsskóli sem er grunnskóli, Hulduberg og Höfðaberg leikskólar eru í göngufæri. Einnig er Lágafellslaug og WorldClass í göngufjarlægð. Hlíðavöllur, golfvöllur og veitingastaðurinn Blik sem er við golfvöllinn er stutt frá sem er verðugt að heimsækja.Miðbær Mosfellsbæjar er rétt við bæjardyrnar þar sem gefur að telja Bónus, Krónuna, Bakarí Mosfellsbæjar, Lyfju Mos, Ísbúð Huppu, Fiskbúðina Mos og Hlín blómahús.Frábærar göngu- og hjólaleiðir allt í kring.Eignin Brattahlíð 26 er skráð sem hér segir hjá HMS: Eign 252-0417, birt stærð 129.3 fm.Kaupandi greiðir skipulagsgjald af eigninni sem lagt verður á eftir að brunabótamat liggur fyrir.Hafið samband og bókið skoðun. Nánari upplýsingar veitir Aðalsteinn Steinþórsson viðskiptafr. - löggiltur fasteignasali, í síma 896 5865, tölvupóstur ogÞyrí Guðjónsdóttir, viðskiptafr. - löggiltur fasteignasali, í síma 891 9867, tölvupóstur .Forsendur söluyfirlits:Söluyfirlit er samið af fasteignasala í samræmi við ákvæði laga nr. 70/2015. Þær upplýsingar sem fram koma í söluyfirliti þessu eru sóttar í opinberar skrár, til seljanda sjálfs og eftir atvikum til húsfélags. Seljandi veitir upplýsingar um eign í samræmi við upplýsingaskyldu laga um fasteignakaup nr. 40/2002. Fasteignasali sannreynir að þær upplýsingar séu réttar með sjónskoðun á eigninni. Fasteignasali getur ekki fullyrt um ástand og eiginleika þeirra hluta fasteigna sem ekki eru aðgengilegir og sjást ekki berum augum, t.d. lagnir, dren, skólp og þak.Um skoðunar- og aðgæsluskyldu:Í lögum um fasteignakaup nr. 40/2002 er kveðið á um ríka skoðunarskyldu kaupenda á fasteignum. Valborg ehf. fasteignasala bendir væntanlegum kaupendum á að kynna sér vel ástand fasteigna við skoðun og fyrir tilboðsgerð og ef þurfa þykir að leita til sérfræðinga um nánari ástandsskoðun.Gjöld sem kaupandi þarf að standa straum af vegna kaupanna:1. Stimpilgjald af kaupsamningi sem er hlutfall af fasteignamati. Stimpilgjald er 0,8% fyrir einstaklinga (0,4% við fyrstu kaup) og 1,6% fyrir lögaðila.2. Þinglýsingargjald af kaupsamningi, veðskuldabréfum, veðleyfum o.fl. Þinglýsingargjald er kr. 2.700,- fyrir hvert skjal.3. Lántökugjald lánastofnunar. Um lántökugjald vísast í gjaldskrá viðkomandi lánveitanda.4. Umsýsluþóknun fasteignasölu skv. gjaldskrá.5. Ef um nýbyggingu er að ræða greiðir kaupandi skipulagsgjald, 0,3% af brunabótamati, þegar það er lagt á.