129,3 m² raðhús í Mosfellsbær, tvö svefnherbergi, staðsteypt bygging með steinaðri framhlið, 2,9 metra lofthæð, tilbúið til afhendingar
Þessi lýsing er búin til af gervigreind Aurbjargar•
Eiginleikar
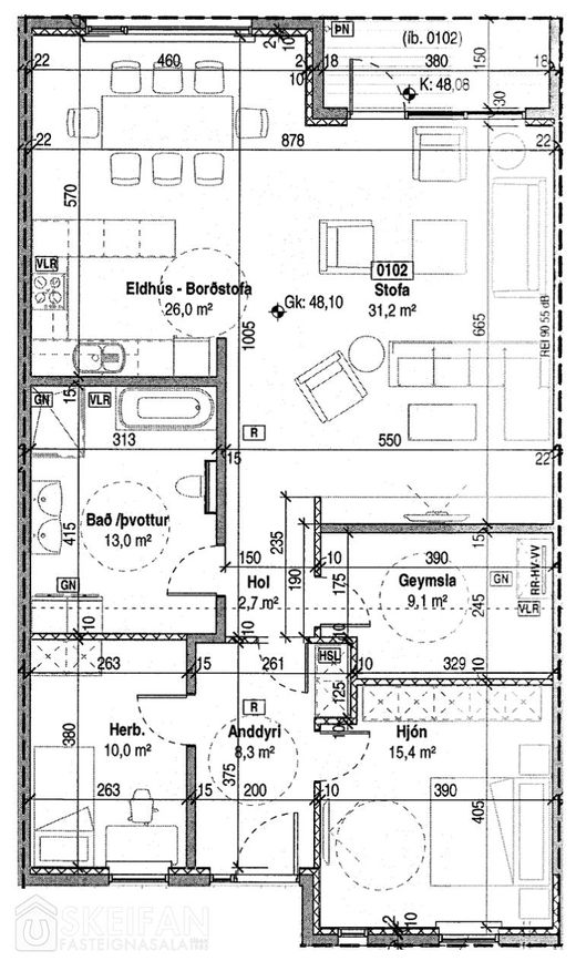
Íbúð
Raðhús með staðsteyptum útveggjum og steinaðri framhlið. Skipulag með forstofu, U-laga eldhús, stofu/borðstofu, baðherbergi með þvottaaðstöðu, 2 svefnherbergi og innbyggða geymslu
Stofa
Stofa/borðstofa með vínylparketgólfi og útigöngu á verönd
Eldhús
Sérsmíðuð U-laga innrétting frá Brúnás með spanhelluborði, háfum og bakaraofni í vinnuhæð. Ágætis skápapláss og tenging við stofu/borðstofu
Svefnherbergi
Tvö svefnherbergi með innbyggðum fataskápum og vínylparketgólfi
Baðherbergi
Baðherbergi með walk-in sturtu, baðkari, handklæðaofni og Grohe-hreinlætistækjum. Flísalagt með aðstöðu fyrir þvottavél og þurrkara
Þvottahús
Þvottaaðstaða í baðherbergi með þvottavél og þurrkara
Geymsla
Innbyggð geymsla innan íbúðar með vínylparketgólfi
Garður
Hellulagt garðsvæði með snjóbræðslukerfi að framan og sorpskæli fyrir þrjár tunnur
Svalir/þak
Verönd með útgöngu úr stofu/borðstofu
Tæki
Siemens heimilistæki og Grohe-hreinlætistæki með bakaraofni
Efni
Steinaðir útveggir, staðsteypt þakplata með tvöföldum þakpappa, vínylparket á öllum gólfum nema flísalagt baðherbergi
Annað
Álgluggar og hurðir, sérsmíðaðar innréttingar frá Brúnás, eikarinnréttingar frá Parka