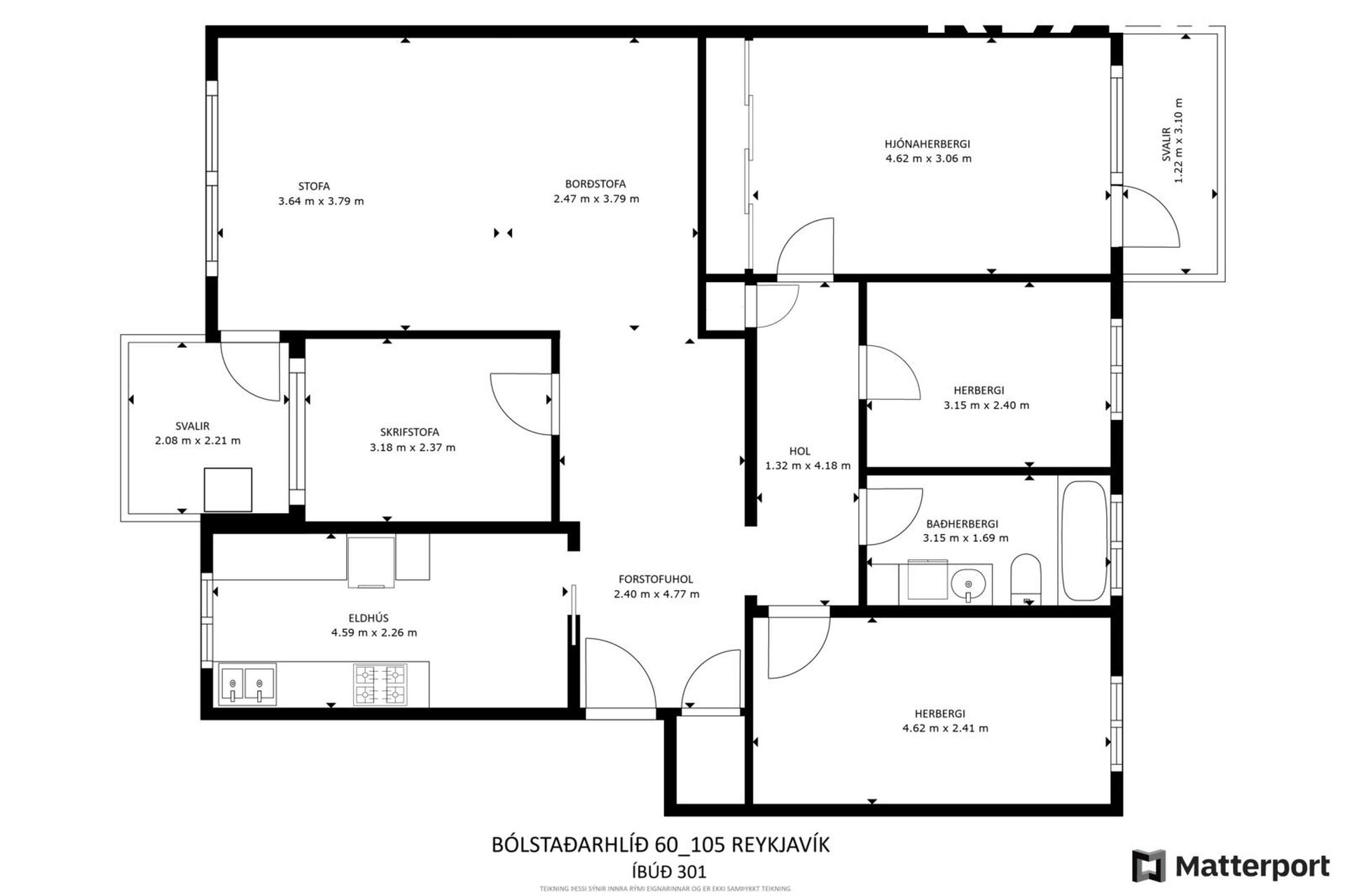
FJÁRFESTING FASTEIGNASALA ER MEÐ TIL SÖLU FALLEGA MIKIÐ ENDURNÝJAÐA 4. HERBERGJA ÚTSÝNISÍBÚÐ Í GÓÐU FJÖLBÝLISHÚSI Í BÓLSTAÐARHLÍÐ 60 Í REYKJAVÍK. ÍBÚÐIN ER BJÖRT OG EINKAR VEL SKIPULÖGÐ, 3 SVEFNHERBERGI ERU Á SVEFNHERBERGISGANGI OG ERU SVALIR BÆÐI TIL AUSTURS OG VESTURS. ÍBÚÐIN ER EINSTAKLEGA VEL STAÐSETT Í RÓLEGU OG FJÖLSKYLDUVÆNU HVERFI, ÞAR SEM STUTT ER Í ALLA ÞJÓNUSTU OG MIKIL NÁLÆGÐ ER VIÐ SKÓLA OG LEIKSKÓLA.Íbúðin sjálf er 110,1 fm. og sérgeymslu er 5,9 fm. Samtals er eignin því skráð 116,0 fm. að stærð.
Falleg útsýnisíbúð á efstu hæð.
Mögulegt að bæta við 4. svefnherberginu á kostnað borðstofu.
Nýbúið er að endurnýja ofnalagnir í íbúðinni.
Uppl. hjá Óskari í síma 822-8750 (oskar@fjarfesting.is)
Nánari lýsing: Komið er inn í hol með parketi á gólfi og fatahengi.
Eldhús með flísum á gólfi, snyrtilegri innréttingu (frá Axis) og borðkrók.
Stofa og borðstofa eru rúmgóðar og bjartar með parketi á gólfi og útgengi á góðar svalir.
Svefnherbergisgangur með parketi á gólfi og litlum skáp.
Hjónaherbergi: Einkar rúmgott með parketi á gólfi, góðum fataskápum og útgengi út á svalir.
Barnaherbergi 1: Rúmgott með parketi á gólfi og opnum fataskáp.
Barnaherbergi 2: Fínt barnaherbergi með parketi á gólfi.
Baðherbergi, var endurnýjað að fullu árið 2016. Skipt var um flísar á gólfi og veggjum, sett var upp nýtt baðkar og sturtuaðstöðu ásamt upphengdu salerni, þar er einnig handklæðaofn og smekkleg tekk innrétting. Góður gluggi er á baðherbergi og tengi fyrir þvottavél og þurrkara.
Sérgeymsla: 5,9 fm er staðsett í kjallara.
Sameign: Sameigin er snyrtileg, en í henni er að finna sameiginlegt þvottahús, hjólageymslu og sorpgeymslu.
Garður: sameiginlegur stór og gróinn garður.
Framkvæmdir á síðustu árum:Skipt var um eldhúsinnréttingu í kringum árið 2012 og þá voru skápar í svefnherbergi einnig endurnýjaðir.
Árið 2016 var var baðherbergi endurnýjað að fullu.
- Dregið var í nýtt rafmagn og skipt var um alla tengla
- Skipt var um gólfefni á eldhúsi
- Múrviðgerðir á húsi
- Skipt um alla glugga og svalahurð á austurhlið hússins og húsið málað.
Árið 2018 var skipt um þrýstijafnara fyrir heitt vatn
Árið 2019 var stigagangur í sameign málaður
Árið 2022
- Nýtt harðparket lagt á öll herbergi, stofu og ganga.
- Skipt var jafnframt um allar hurðar, sem eru frá Birgissyni.
- Myndavéladyrasími settur upp í húsinu.
Árið 2023 voru lagnir myndaðar og í kjölfarið var skipt um frárennslislagnir og stamma öðrum megin í stigagangi, frá 1. hæð og niður í kjallara.
Árið 2026 voru ofnalagnir endurnýjaðar.
Árið 1998 var þak endurnýjað
Skipt var um þakrennur og dren fyrir u.þ.b. 15 árum.
Kostnaður kaupanda vegna kaupa:
1. Stimpilgjald af kaupsamningi er 0,8% af heildarfasteignamati. 1,6% fyrir lögaðila, en 0,4% við fyrstu kaup einstaklinga. 2. Þinglýsingar af hverju skjali er 3800 kr.
3. Lántökugjald skv. verðskrá fjármálastofnunar. 4. Umsýsluþóknun sjá kauptilboð.