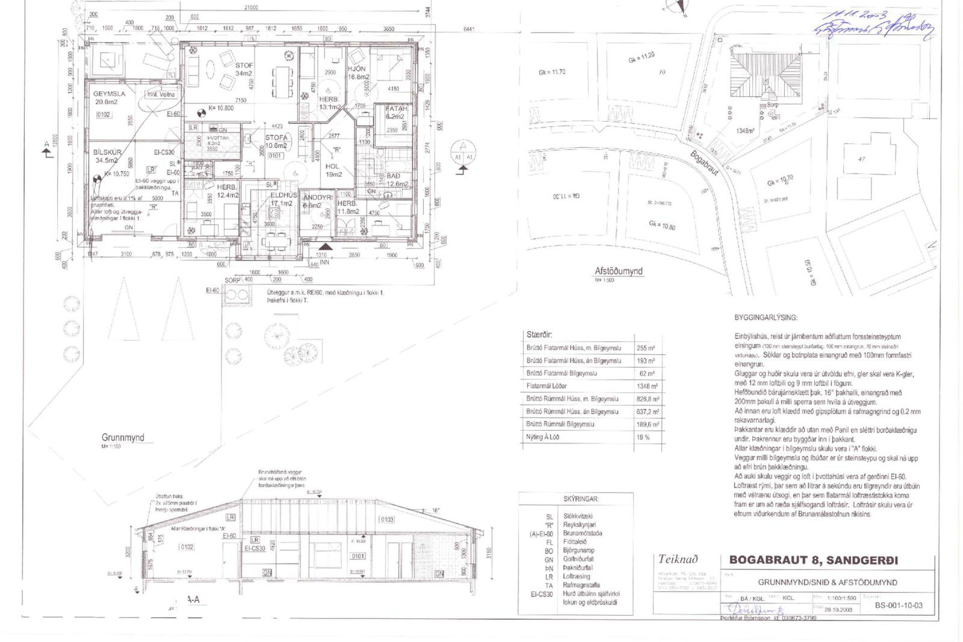
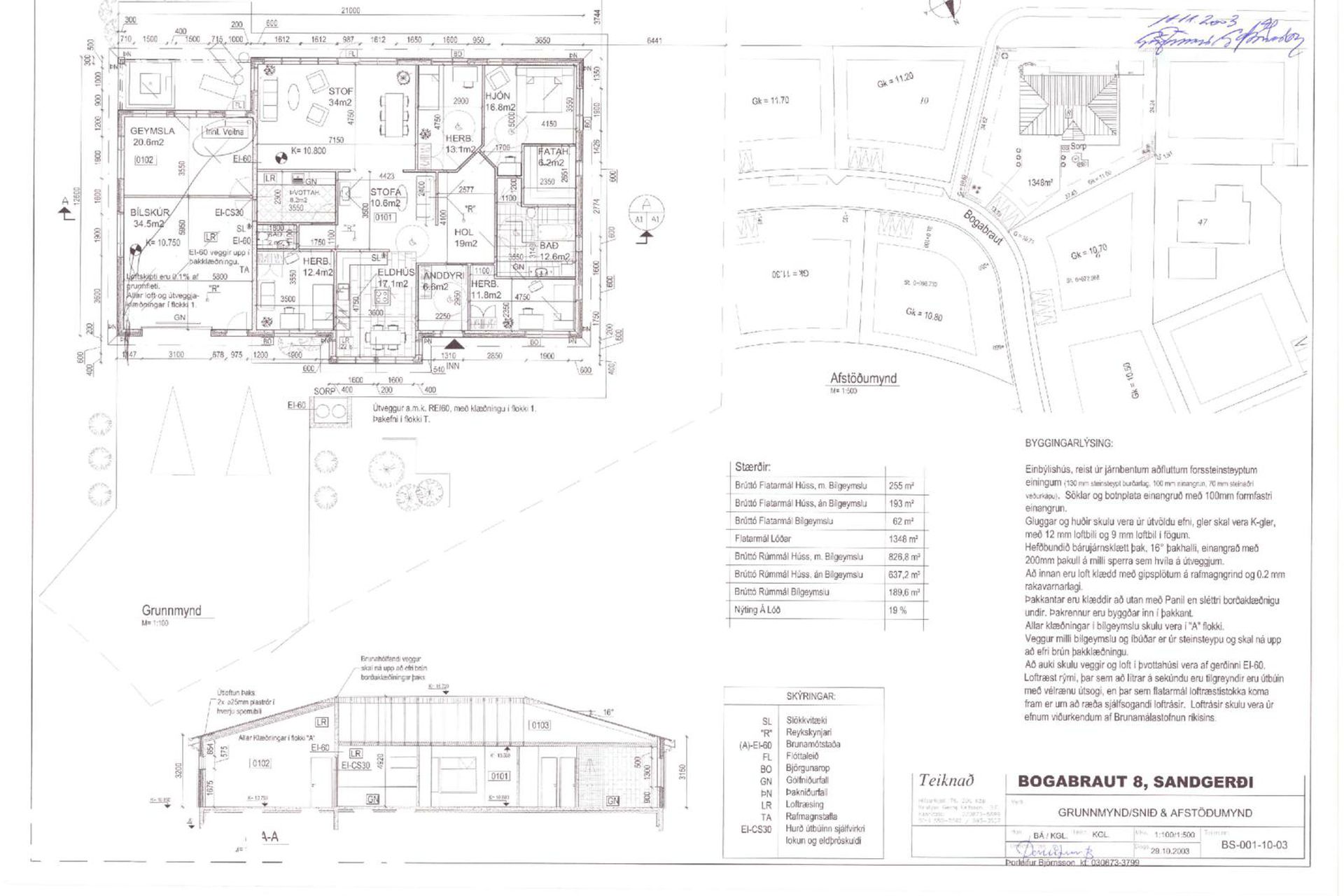
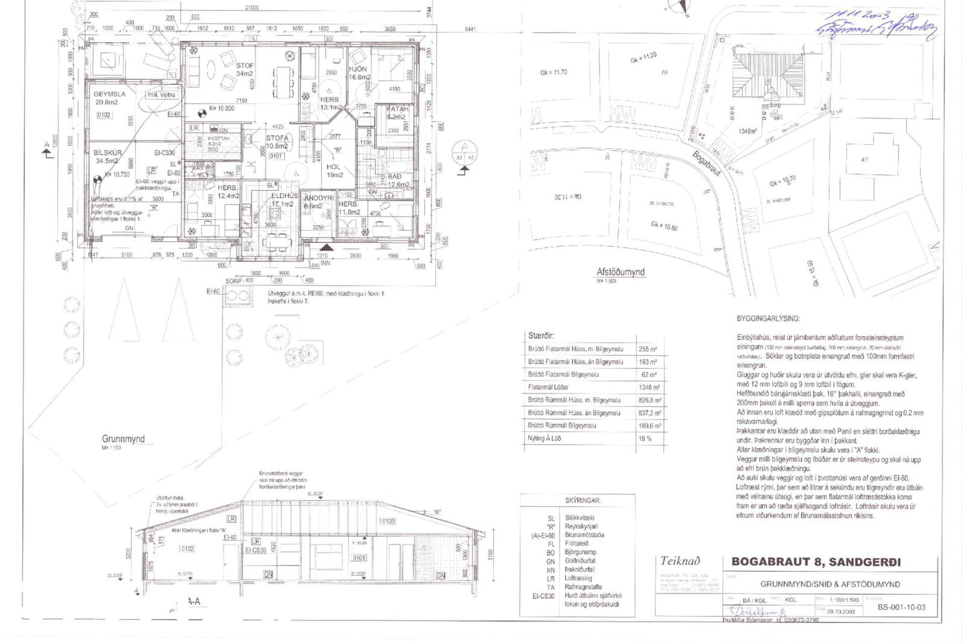
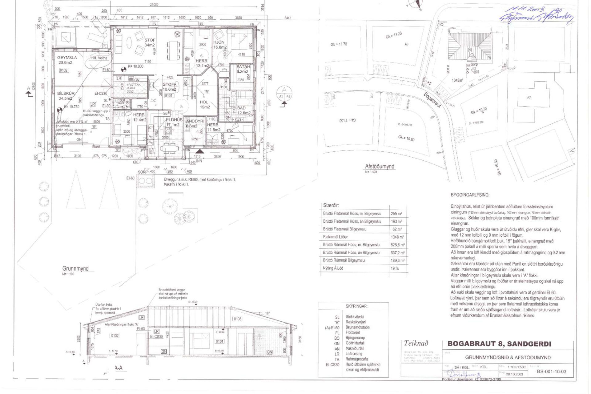
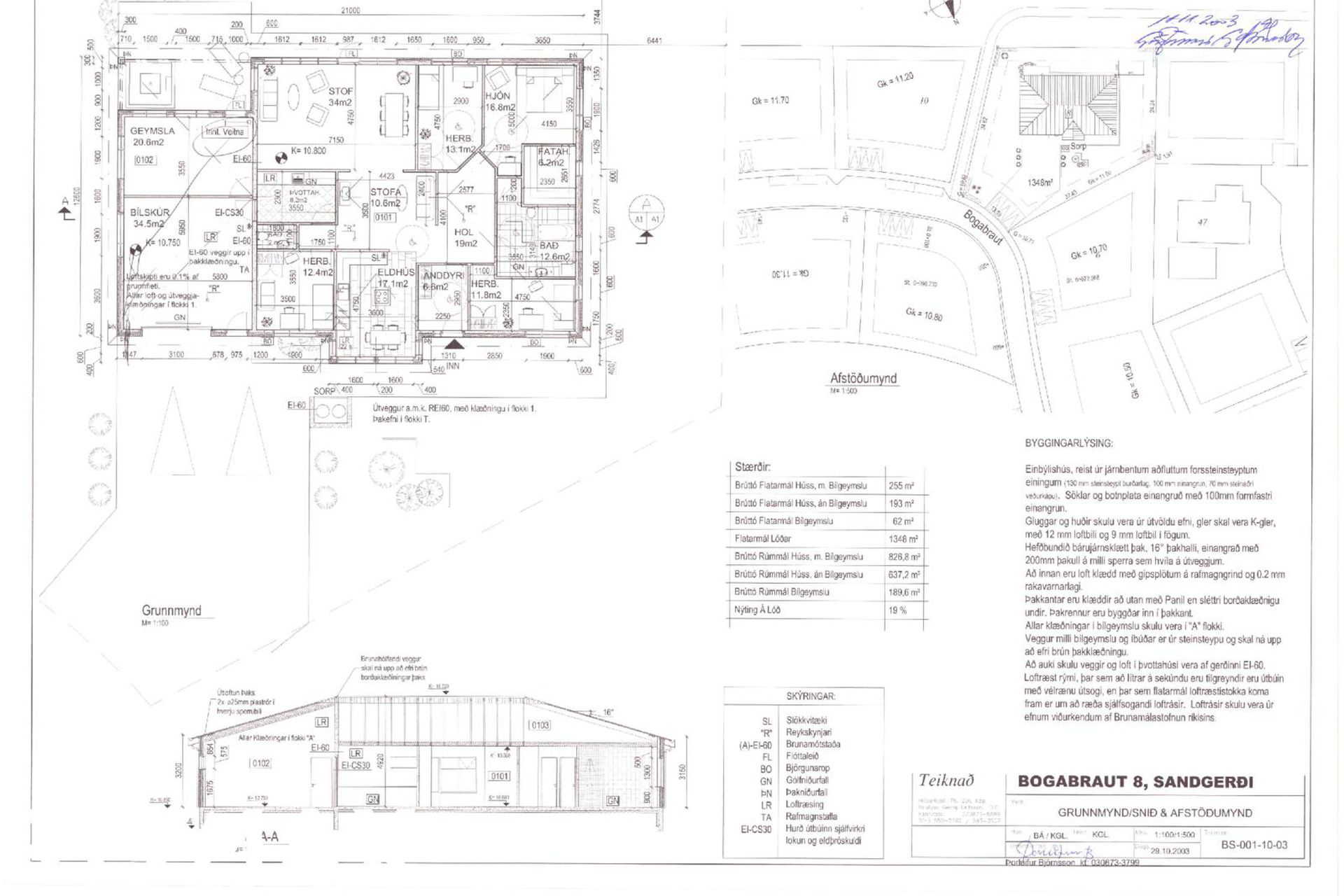
255,2 fm einbýlishús með 62,2 fm bílskúr, ~25 fm sólstofu og ~13 fm geymsluskúr. Hjólastólaaðgengi, Salus gólfhitakerfi, 4-5 svefnherbergi, þvottahús, bílskúr með epoxy-málað gólfi, sólstofa með pizzuofni.
Þessi lýsing er búin til af gervigreind Aurbjargar•
Eiginleikar
Íbúð
Einbýlishús með 4-5 svefnherbergi, bílskúr, sólstofu og geymsluskúr. Opinn flísalagður stofusali með útigöngu, innbyggðar innréttingar í eldhúsi, hjólastólaaðgengi í öllu húsinu.
Stofa
Bjart og opið stofurými með flísalögðu gólfi og útigöngu á baklóð.
Eldhús
Með brúnni innréttingu, borðkrók og flísalögðu gólfi.
Svefnherbergi
4-5 rúmgóð svefnherbergi með parketgólfi. Fataherbergi tengt hjónaherbergi.
Baðherbergi
Flísalagt með sturtu, baðkari og upphengdu salerni.
Guest baðherbergi
Gestasnyrting með vaski, upphengdu salerni og flísalögðu gólfi.
Þvottahús
Með innréttingu, skolvask og plássi fyrir kæli/frysti. Innangengt í bílskúr.
Geymsla
Geymsluskúr á lóð (~13 fm).
Bílskúr
Epoxy-málað gólf, herbergi/geymsla innan og innangengt í sólstofu. Nýr rafmagnsopnari á hurð.
Önnur herbergi
Sólstofa með útieldhúsi og pizzuofni, útgöngu út á lóð.
Tæki
Pizzuofn í sólstofu, innbyggðar innréttingar í eldhúsi.
Svæði
Rólegt og fjölskylduvænt hverfi nálægt skóla, leikskóla, íþróttahúsi og sundlaug.
Efni
Flísalög gólf í stofu og baðherbergjum, parket í svefnherbergjum, epoxy-málað gólf í bílskúr.
Annað
Hjólastólaaðgengi í öllu húsinu, sólstofa tengd bílskúr með útieldhúsi.