Þessi lýsing er búin til af gervigreind Aurbjargar•
Eiginleikar
Íbúð
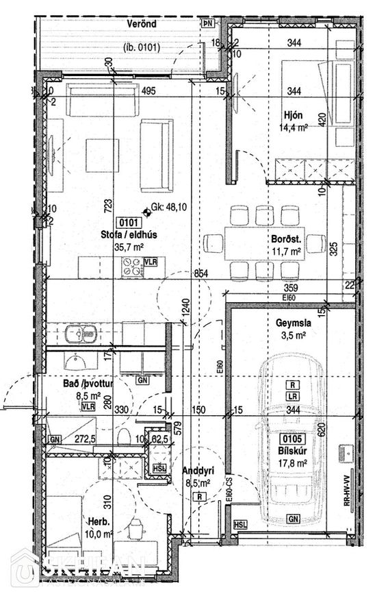
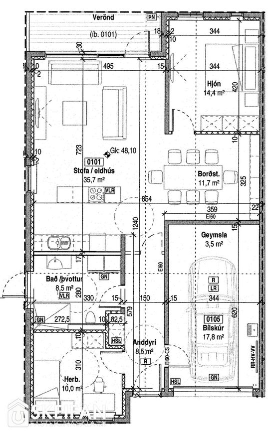
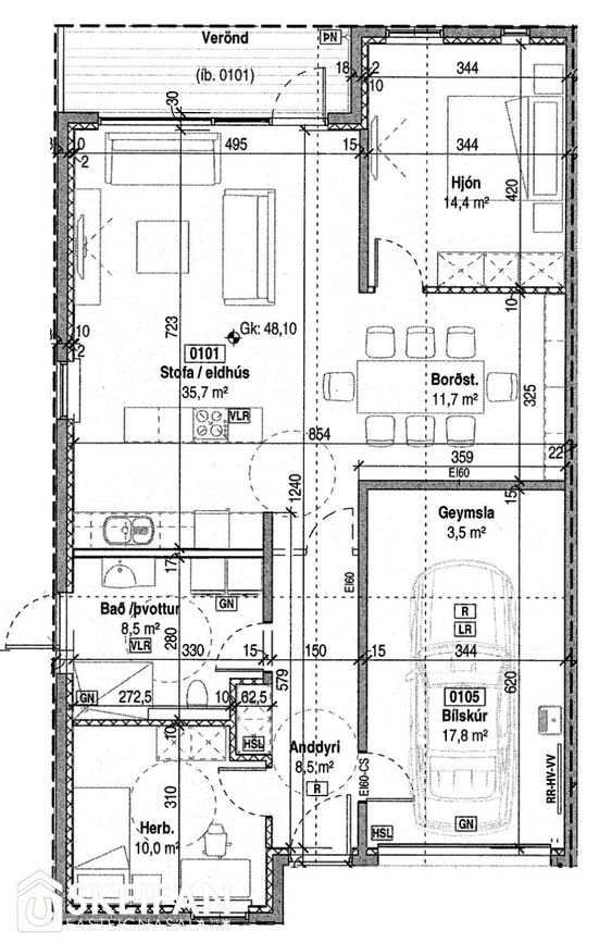
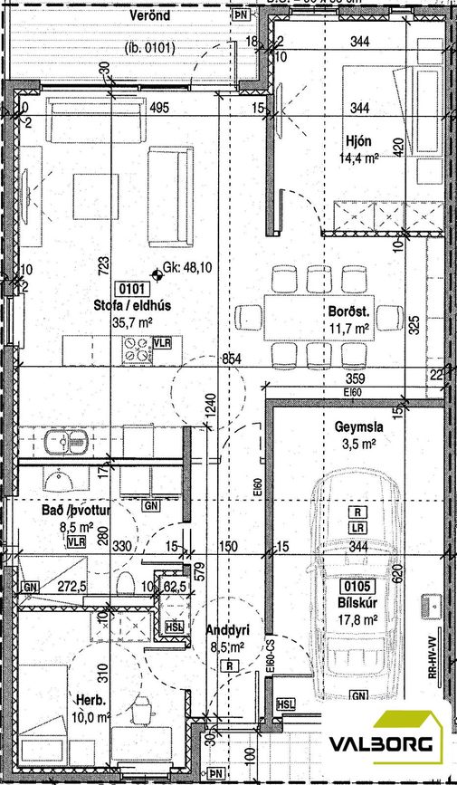
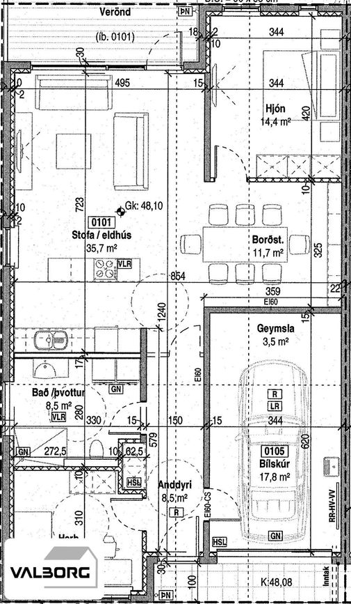
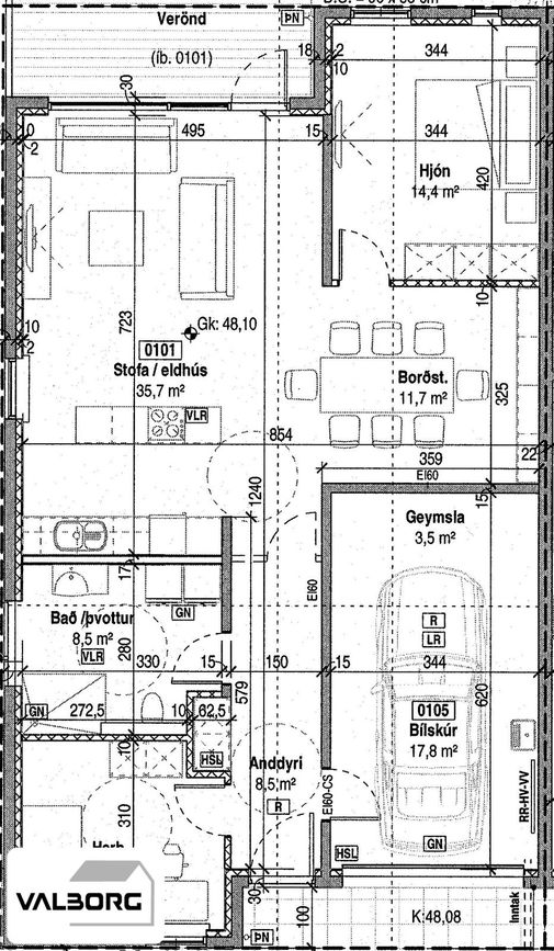
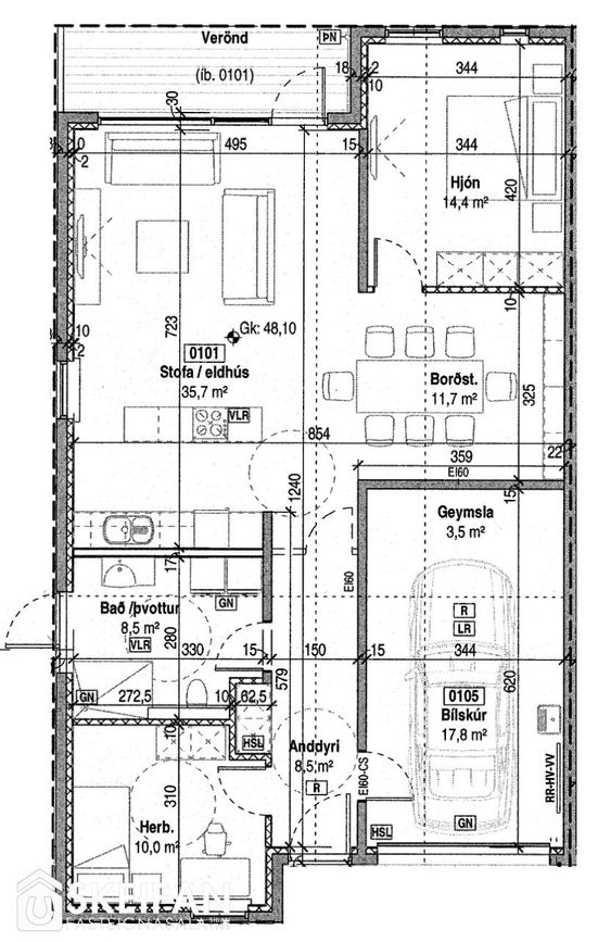
Endaraðhús á einni hæð skiptist í stofu, borðstofu, opið eldhús, hjónaherbergi, barnaherbergi, baðherbergi með þvottavél og þurrkara, anddyri og innbyggðan bílskúr.
Stofa
Stofa sem tilheyrir borðstofu.
Eldhús
Opið eldhús með Siemens heimilistækjum. Háfur sem blæs út úr húsi. Sérsmíðaðar eikarinnréttingar frá Brúnás. Gólfefni vínilparket.
Svefnherbergi
Hjónaherbergi og barnaherbergi. Gólfefni vínilparket á öllum rýmum.
Baðherbergi
Baðherbergi með sturtu og innréttingu fyrir þvottavél og þurrkara. Flísar á gólfi og veggjum.
Þvottahús
Þvottavél og þurrkari í innréttingu inni í baðherberginu.
Geymsla
Innbyggður bílskúr (24,2 m²) veitir geymslupláss.
Bílskúr
Innbyggður bílskúr (24,2 m²). Með bílskúrshurðaopnara.
Garður
Hellulögð verönd með hitalögn í garðinn. Helmingur garðsins er þökulagður. Ídráttarrör fyrir heitan pott frá inntaki í garðinn.
Svalir/þak
Hellulögð verönd í garðinum.
Önnur herbergi
Anddyri.
Tæki
Siemens heimilistæki og Grohe hreinlætistæki. Þvottavél og þurrkari í baðherberginu. Háfur í eldhúsi.
Svæði
Miðsvæðis í rólegri götu í Mosfellsbæ. Í göngufæri eru Lágafellsskóli (grunnskóli), Hulduberg og Höfðaberg leikskólar, Lágafellslaug og WorldClass. Stutt frá Hlíðarvelli, golfvelli og veitingastaðnum Blik. Miðbær Mosfellsbæjar með Bónus, Krónuna, bakarí, lyfju, ísbúð, fiskbúð og blómahús nálægt. Fínar göngu- og hjólaleiðir í kringum hverfið.
Efni
64 myndir
Húsnæðislán
Kíktu á dæmið með Aurbjörgu
kr.
kr.
ár
kr.
Steyptir steinaðir útveggir. Vínilparket á öllum innangöldum rýmum. Flísar á gólfi og veggjum í baðherbergi/þvottahúsi. Innihurðir eikarhurðir frá Parka. Gluggar og hurðir úr áli. Þakplata staðsteypt með tvöföldum þakpappa, einangrun og þakmöl.
Annað
Kaupandi greiðir skipulagsgjald af eigninni þegar brunabótamat liggur fyrir. Áætlað fasteignamat árið 2026 er 116,8 mkr.