Fasteignasalan Hvammur 466 1600
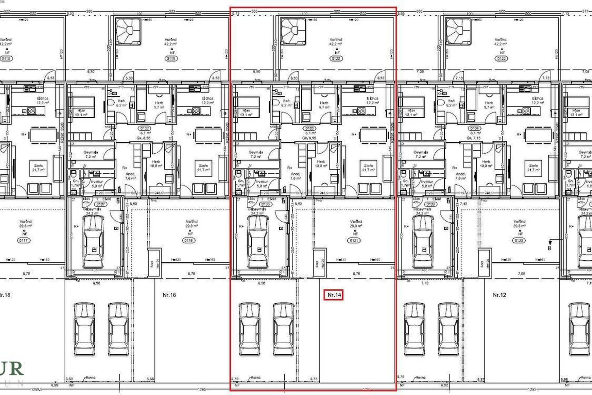
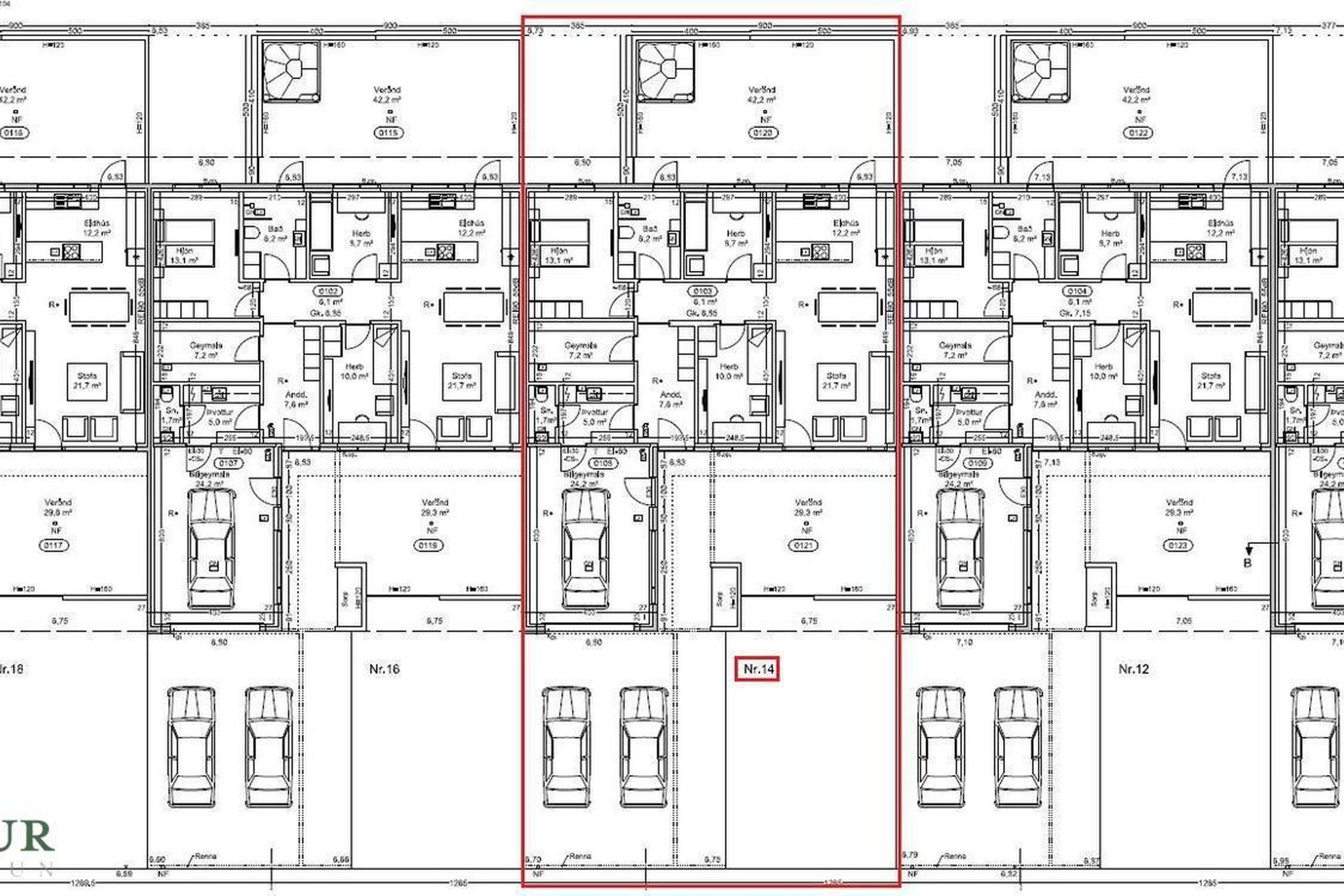
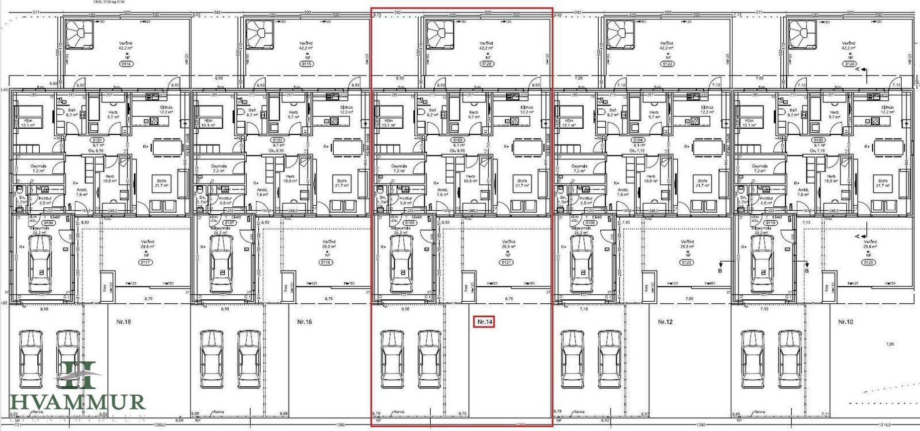
Bakkatröð 14 - Glæsileg 4ra herbergja raðhúsaíbúð með bílskúr í Eyjafjarðarsveit - stærð 142,0 m²Eignin er steypt, með steyptu þaki og hita í veröndum og bílaplani.
Eignin er með skráð byggingarár 2019 en var ekki tekin í notkun fyrr en um mitt ár 2021Eignin skiptist í forstofu, gang, eldhús og stofu í opnu rými, þrjú svefnherbergi, baðherbergi, geymslu, þvottahús, snyrtingu og bílskúr.
Forstofa er með ljósu vínyl parketi á gólfi og tvöföldum skáp.
Eldhús er með góðri hvítri innréttingu og filmaðri bekkplötu. Mjög gott skápa- og bekkjarpláss. Span helluborð. Ísskápur og uppþvottavél fylgja með við sölu eignar. Úr eldhúsi er gengið út á steypta suður verönd með heitum potti/rafmagnspottur.
Stofa og eldhús eru í opnu rými, með ljósu vínyl parketi á gólfi, innfelldri lýsingu í lofti og gluggum til norður og suðurs. Úr stofu er gengið út til norðurs á steypta verönd.
Svefnherbergin eru þrjú, öll með ljósu vínyl parketi á gólfi, hvítum fataskápum og innfelldri lýsingu í loftum. Stærð svefnherbergja er skv. teikningum 8,7 , 10,1 og 13,8 m²
Baðherbergi er með gráum flísum á gólfi og hluta veggja, hvítri innréttingu, speglaskáp, upphengdu wc, sturtu og hurð út á suður verönd.
Lítil snyrting er inn af þvottahúsinu, með ljósu vínyl parketi á gólfi, hvítri innréttingu og upphengdu wc.
Þvottahús er með ljósu vínyl parketi á gólfi og hvítri innréttingu með stæði fyrir þvottavél og þurrkara í vinnuhæð og skolvask. Gengið er í gegnum þvottahúsið þegar farið er inn í bílskúr.
Geymsla er með ljós vínyl parketi á gólfi og innfelldri lýsingu. Stærð geymslu er skv. teikningum 7,4 m²
Bílskúr er með epoxy efni á gólfi, rafdifnum opnara á innkeyrsluhurð og sér gönguhurð. Loft er tekið upp.
Annað- Hljóðdempandi plötur eru í öllum loftum nema baðherbergi og bílskúr.
- Innfelld led lýsing í öllum rýmum fyrir utan bílskúr, þar eru led lampar.
- Steyptar verandir með hitalögnum í eru beggja megin við húsið, lokað kerfi.
- Hitalagnir eru í bílaplani, lokað kerfi.
- Varmaskiptir er á neysluvatni.
- Rafmagnspottur er á suður veröndinni og fylgir hann með við sölu eignar
- Rafhleðslustöð.
- Eignin er í einkasölu
Um skoðunar- og aðgæsluskyldu:Í lögum um fasteignakaup nr. 40/2002 er kveðið á um ríka skoðunarskyldu kaupenda á fasteignum. Fasteignasalan Hvammur skorar því á væntanlega kaupendur að kynna sér vel ástand fasteigna fyrir kauptilboðsgerð og leita til þar til bærra sérfræðinga um nánari skoðun ef með þarf.
Forsendur söluyfirlits:Söluyfirlit er samið af fasteignasala í samræmi við ákvæði laga nr. 70/2015. Þær upplýsingar sem fram koma í söluyfirliti þessu eru sóttar í opinberar skrár, til seljanda sjálfs og eftir atvikum til húsfélags. Seljandi veitir upplýsingar um eign í samræmi við upplýsingaskyldu laga um fasteignakaup nr. 40/2002. Fasteignasali sannreynir að þær upplýsingar séu réttar með sjónskoðun á eigninni. Fasteignasali getur ekki fullyrt um ástand og eiginleika þeirra hluta fasteigna sem ekki eru aðgengilegir og sjást ekki berum augum, t.d. lagnir, dren, skólp og þak.