Gimli fasteignasala og Halla Unnur Helgadóttir kynna: Áshamar 14, Hafnarfjörður.
Tilbúin til afhendingar. Björt og falleg
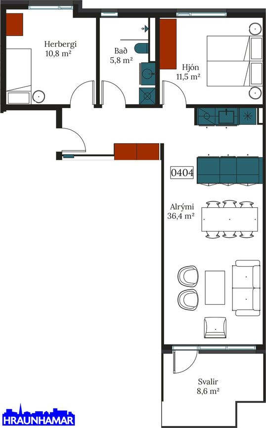
3ja herbergja íbúð á 4ðu hæð í nýju lyftuhúsi.
Útsýni.
Stæði í bílageymslu. Í íbúðinni er jafnvægisstilt loftræstikerfi sem tryggir gæði inniloftsins. Húsið er Svansvottað þar sem stífar kröfur um efnisval og nýtingu á orku ásamt ströngum tilmælum um góða hljóðvist og gott birtustig í íbúðunum hefur verið uppfyllt.
Ísskápur og innbyggð uppþvottavél fylgja.Eignin Áshamar 14 er skráð sem hér segir hjá FMR: Eign 252-4971, birt stærð 81.2 fm. Nánar tiltekið eign merkt 04-04, ásamt öllu því sem eigninni fylgir, þar með talið tilheyrandi lóðar og sameignarréttindi.
Allar íbúðir í Áshamri 12 – 26 hafa hlotið vottun Norræna umhverfismerkisins leyfi númer: 1089 0319 samkvæmt viðmiðunarreglum um nýbyggingar
Bókið skoðun hjá: Halla Unnur Helgadóttir í síma 6594044, eða halla@gimli.is eða Elín Rósa Guðlaugsdóttir í síma 773-7126, eða elinrosa@gimli.is
NÁNARI LÝSING:Anddyri/forstofa: með góðum fataskáp.
Alrými: eldhús, stofa/borðstofa:
Eldhús: innréttingar frá HTH, hvítar/ ljós-askur. Tangi með spanhelluborði, ofn og hangandi gufugleypir, skápar að eldhúsi og borðstofu.
Ísskápur í innréttingu fylgir (
hér) sem og
innbyggð uppþvottavél (
hér). Vönduð blöndunartæki.
Stofa/borðstofa samliggjandi eldhúsi, frá stofu er útg. á rúmgóðar svalir.
Aðalsvefnherbergi: rúmgott, með fjórföldum fataskáp.
Svefnherbergi #2: rúmgott, með tvöföldum fataskáp.
Baðherbergi: rúmgott. Vaskur í hvítri innréttingu, vegghengt salerni og WI-sturta,
gluggi og loftræstikerfi. Aðstaða fyrir þvottavél/þurrkara. Flísalagt gólf og veggir að hluta.
Geymsla: rúmgóð geymsla í sameign.
Bílastæði: Sérmertk stæði í bílageymslu. 07-B36
Á öðrum gólfum en að framan greinir er ljóst harðparket með stórum plönkum.
Að utan: húsið er viðhaldslétt, klætt.
Lóð er fullfrágengin með grasflötum, göngustígum og leiktækjum.
Nánar um hverfið (af heimasíðu fyrir Áshamar 12-26)Áshamar 12-26 í Hamranesi er kjarni sex nútímalegra fjölbýlishúsa með 154 íbúðum í hverfi þar sem þegar hefur byggð upp þjónustu fyrir íbúa. Vellirnir/Skarðshlíð skarta tveimur grunnskólum og fjórum leikskólum en einnig er gert ráð fyrir að það komi grunnskóli og tveir fjögurra deilda leikskólar, auk þess hjúkrunar- og heilsugæslustöð í Hamranesið.
Íbúðirnar eru 2ja til 4ra herbergja. Breitt úrval fyrir allar gerðir fjölskyldna þar sem hugað er að öryggi í umferðinni með góðum göngustígum og gangakerfi. Húsin eru nærri náttúruperlum sem eru vinsælar til útivistar.
Nánari upplýsingar veitir: Halla Unnur Helgadóttir, löggiltur fasteignasali, í síma 659-4044, tölvupóstur halla@gimli.is og/eða Elín Rósa Guðlaugsdóttir, löggiltur fasteignasali, í síma 773-7126, tölvupóstur elinrosa@gimli.is
Gimli fasteignasala hefur stundað fasteignaviðskipti með farsælum hætti á fimmta áratug og er ein af elstu starfandi fasteignasölum landsins, stofnuð árið 1982. Leiðarljós Gimli er heiðarleiki, traust og góð þjónusta.
Gimli, gerir betur...Gimli er staðsett á 2. hæð á Grensásvegi 13, 108 Reykjavík og á 2. hæð á Eyravegi 29, Selfoss.
Opnunartími frá kl. 10 -16 alla vikra daga, sími: 570 4800, tölvupóstur:
gimli@gimli.isHeimasíða Gimli fasteignasöluGimli á FacebookUm skoðunar- og aðgæsluskyldu kaupenda: Í lögum um fasteignakaup nr. 40/2002 er kveðið á um ríka skoðunarskyldu kaupenda á fasteignum. Gimli fasteignasala bendir væntanlegum kaupendum á að kynna sér vel ástand eigna við skoðun og fyrir tilboðsgerð og að leita til sérfræðinga um nánari ástandsskoðun ef þörf er á.
Forsendur söluyfirlits: Söluyfirlit er samið af fasteignasala í samræmi við ákvæði laga nr. 70/2015. Þær upplýsingar sem fram koma í söluyfirliti þessu eru sóttar í opinberar skrár, til seljanda sjálfs og eftir atvikum til húsfélags. Seljandi veitir upplýsingar um eign í samræmi við upplýsingaskyldu laga um fasteignakaup nr. 40/2002. Fasteignasali sannreynir að þær upplýsingar séu réttar með sjónskoðun á eigninni. Fasteignasali getur ekki fullyrt um ástand og eiginleika þeirra hluta fasteigna sem ekki eru aðgengilegir og sjást ekki berum augum, t.d. lagnir, dren, skólp og þak.
Gjöld sem kaupandi þarf að standa straum af vegna kaupanna:Stimpilgjald af kaupsamningi sem er hlutfall af fasteignamati. Stimpilgjald er 0,8% fyrir einstaklinga (0,4% við fyrstu kaup m.v. að lágmarki 50% eignarhlut) og 1,6% fyrir lögaðila.Þinglýsingargjald hvers skjals er kr. 2.700,- .Lántökugjald lánastofnunar skv. gjaldskrá viðkomandi lánveitanda.Umsýsluþóknun fasteignasölu skv. gjaldskrá.Ef um nýbyggingu er að ræða greiðir kaupandi skipulagsgjald, 0,3% af brunabótamati, þegar það er lagt á.
Teikningar sem fylgja lýsingu eignarinnar og myndum eru til viðmiðunar og ekki alltaf í samræmi við samþykktar teikningar af eigninni.
Myndir í auglýsingu eru í einkaeigu og er notkun þeirra með öllu óheimil án formlegs leyfis fasteignasala
Gimli fasteignasala leggur áherslu á traust, áreiðanleika og góða þjónustu.
Það er okkar trú að það skipti öllu máli í fasteignaviðskiptum að viðskiptavinurinn fái trausta og góða þjónustu. Við hjá Gimli höfum stundað fasteignaviðskipti með farsælum hætti í meira en fjóra áratugi. Hjá okkur starfa sérhæfðir og reyndir fasteignasalar sem sinna stórum sem smáum verkefnum af nákvæmni og þekkingu sem skilar árangri.
Hvar erum við?
Gimli Fasteignasala er staðsett á jarðhæð í Skipholti 35 í Reykjavík en einnig rekum við söluskrifstofu að Eyrarvegi 29. 2 hæð á Selfossi.
Við höfum opið frá 10-15 mánudaga til föstudaga. Sláðu á þráðinn eða líttu við hjá okkur í Skipholtinu næst þegar þú átt leið hjá. Við erum alltaf með heitt á könnunni.
Gimli gerir betur...