Þorsteinn Ólafs löggiltur fasteignasali og RE/MAX kynna í einkasölu fallega efri hæð, íbúð 01-01 við Akrasel 8 í Reykjavík.
Heildarfasteignin er tvílyft steinsteypt íbúðarhús með 2 íbúðum. Þak er úr timbri með báruðum málmplötum. Tvær samþykktar íbúðir eru í húsinu, ein á neðri hæð og ein á efri hæð.
Bílgeymsla með vinnurými er steinsteypt og tilheyrir íbúðinni á efri hæð. 4 bílastæði eru á lóðinni og eru tvö þeirra fyrir framan bílskúrinn að austanverðu og tilheyra þau íbúð efri hæðar. Lóð hússins er 945 fm leigulóð til 75 ára frá 1. október 1973 og er í óskiptri sameign skv. þinglýstum eignaskiptasamningi frá 4.1.2020.
Þann 7. nóvember 2022 gerðu eigendur íbúða í húsinu með sér samning um breytta hagnýtingu sameignar sem hljóðar svo: "Sá hluti lóðar sem liggur út í vestur frá efri enda miðpalls að lóðarmörkum til vesturs og frá miðjum nyrðri glugga frá skúr að austan og út að lóðarmörkum til austurs og svæðið norðan þessara marka verði sérafnotaflötur íbúðar 00-01 með fnr. 205-5135. Eigandi íbúðar 0101 með fnr. 205-5136 mun hafa umferðarrétt um sérafnotaflöt m.a. til eðlilegs viðhalds síns hluta. Eigandi íbúðar 01-01 mun hafa suðurhluta lóðar frá sömu mörkum sem sérafnotaflöt sinn með umferðarrétti eiganda íbúðar 00-01. Hvor aðili um sig mun sjá um viðhald og umhirðu síns sérafnotaflatar." Þessum samningi var frávísað frá þinglýsingu þann 19. september 2023 og var þinglýsing sögð óþörf skv. 2. mgr. 7. gr. þinglýsingarlaga nr. 39/1978. Í frávísun sýslumanns kom fram að lóðin teljist sameign í skilningi laga nr. 26/1994 um fjöleignarhús og verður ekki skipt upp með þessum hætti, enda ákvæði laganna ófrávíkjanleg nema annað sé tekið fram eða leiði af eðli máls. Samningur er samt sagður fullgildur á milli aðila en þinglýsing óþörf skv. 2. mgr. 7. gr. þinglýsingarlaga nr. 39/1978 sbr. áður.
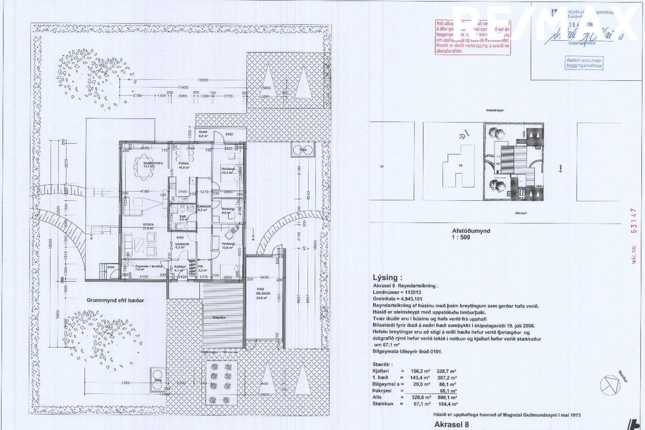
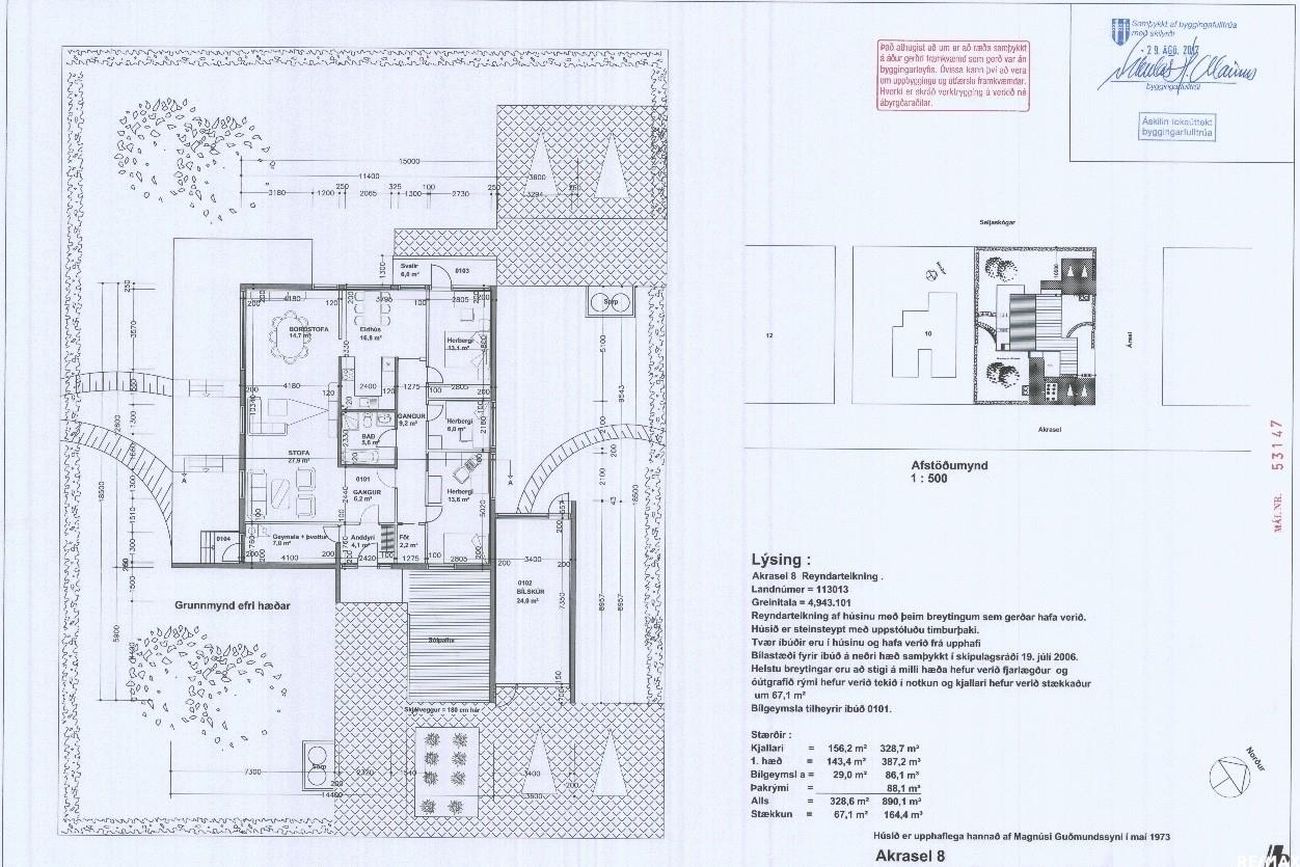
Íbúðin á efri hæð hússins er 143,4 fm íbúð og skiptist í:
4,1 fm flísalagt anddyri með skápum. Frá anddyri er aðgengi í 7 fm geymslu og þvottaherbergi og þaðan er aðgengi út á timburverönd á lóðinni.
6,2 fm gangur með aðgengi í stofu til vinstri og með aðgengi í herbergi til hægri.
Stofan er 27,9 fm og
borðstofan er 14,7 fm. Frá borðstofu er aðgengi í rúmt
eldhús, 16,8 fm með innréttingu og eldhúsborði.
Svefnherbergin eru í dag þrjú, voruð áður fjögur.Tvö stór herbergi, rúmlega 13 fm og eitt minna, 6 fm. Auðvelt er að gera fjórða herbergið með skiptingu á öðru stærra herberginu eins og var áður Innbyggður skápur er í hjónaherbergi.
Nýlegt parket er flæðandi á gólfum nema í herbergjum þar sem er korkur eða dúkur á gólfum.
Baðherbergi er flísalagt með upphengdu salerni, sturtu, vaski með innréttingu og hillum.
Þá fylgja íbúðinni 6 fm
svalir og um 29 fm
bílskúr. Einnig er í lóðinni skúr með útisvæði. Þá er á lóðinni
sólpallur við hlið bílskúrs með 180 cm háum skjólvegg þar sem hægt er að hafa húsgögn, grill og tilheyrandi.
Staðsetning er góð þar sem stutt er í ýmsa verslun s.s. Mjóddina og Smáralind. Skólar og íþróttasvæði ÍR er einnig í næsta nágreinni. .
Nánari upplýsingar veitir Þorsteinn Ólafs lögg. fasteignasali í síma 842-2212, to@remax.is.Vegna mikillar e
ftirspurnar vantar okkur allar tegundir eigna á skrá. Vinsamlega hafið samband við Þorstein Ólafs löggiltan fasteignasala í síma 842-2212 eða með pósti á to@remax.is.