Aurbjörg

Axlarás 37 - 0101, 221 Hafnarfjörður

Sölusaga fasteignar. Skráð 07.10.2025
Axlarás 37
Axlarás 37
Axlarás 37
Axlarás 37
Axlarás 37
146.000.000 kr.
614.478 kr./m²
7
Herb.
6
Svefnherb.
2
Baðh.
237,6
Fermetrar
Tegund
Rað/Par
Byggt
2025
Fasteignamat
90.550.000 kr.
Brunabótamat
0 kr.
Lýsing
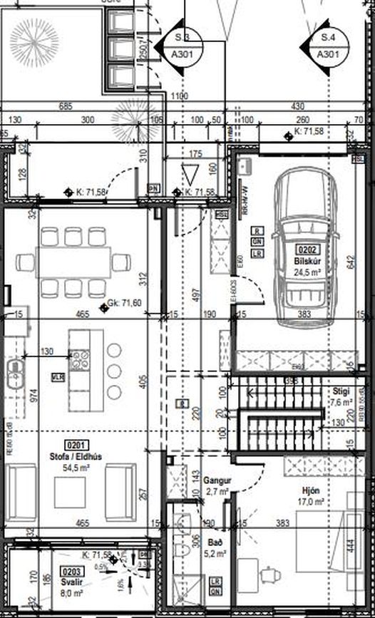
237,6 fm raðhús með 6 svefnherbergi, 2 baðherbergi, bílskúr, stórar svalir, hátt til lofts og gólfhita.
Þessi lýsing er búin til af gervigreind Aurbjargar
Eiginleikar
Íbúð
Forsteypt tveggja hæða raðhús með opnum rými, sjónvarpsherbergi og þvottahús. Tilbúið til innréttingar samkvæmt staðli ÍST 51.
Stofa
Stórt alrými með háum lofti og útsýni.
Eldhús
Ekki tilgreint.
Svefnherbergi
Sex svefnherbergi með möguleikum að aðlaga stærð.
Baðherbergi
Tvö baðherbergi, ekki nánar tilgreind.
Guest baðherbergi
Ekki tilgreint.
Þvottahús
Þvottahús til staðar.
Geymsla
Ekki tilgreint.
Bílskúr
Stór bílskúr (28,1 fm) með fyrirbyggðum snjóbræðslu.
Garður
Sérafnotareitur bæði að framan og aftan við hús.
Svalir/þak
Stórar svalir með handriði úr dökku gleri.
Félagssvæði
Ekki tilgreint.
Önnur herbergi
Sjónvarpsherbergi og þvottahús.
Tæki
Ekki tilgreint.
Svæði
Fjölskylduvænt hverfi nálægt Hvaleyrarvatni, Helgafelli og útivistarmöguleikum.
Efni
Forsteyptar samlokueiningar með járnbentri steinsteypu, slétt áferð á svölum og máluðum innveggjum.
Annað
Kaupandi greiðir skipulagsgjald (0,3% af brunabótamati).

Auglýsingasaga

Skoðaðu auglýsingasögu þessarar íbúðar á minni Aurbjörg.

26 myndir
apartment
apartment
apartment
apartment
apartment
apartment
apartment
apartment
apartment
apartment
apartment
apartment
apartment
apartment
apartment
apartment
apartment
apartment
apartment
apartment
apartment
apartment
apartment
apartment
apartment
apartment
Dags.StærðFermetraverðÁsett
17.10.2025 Nánar237,6601.852 kr.143.000.000 kr.
16.10.2025 Nánar237,6601.852 kr.143.000.000 kr.
09.10.2025 Nánar237,6601.852 kr.143.000.000 kr.
07.10.2025 Nánar237,6614.478 kr.146.000.000 kr.
01.10.2025 Nánar237,6614.478 kr.146.000.000 kr.

Svipaðar eignir í sölu núna

Eignavakt Aurbjargar finnur draumaeignina þína út frá þinni mánaðarlegu greiðslugetu, þínum sparnaði og þínu eigið fé í núverandi fasteign.

Aurbjörg finnur tækifæri í fjármálum heimilisins
Láttu Aurbjörgu standa vaktina og hjálpa þér að taka betri ákvarðanir í fjármálum.
Gerast áskrifandi
Aurbjörg
Markmið Aurbjargar er að auka fjármálalæsi, auka gagnsæi og aðstoða þig við að taka upplýstari og betri ákvarðanir í fjármálum.
RannisTaekniþrounarsjod
© 2017-2025 • Aurbjörg ehf. • 430518-1430 • Lágmúla 9 • 108 Reykjavík