Aurbjörg

Axlarás 37 - 0101, 221 Hafnarfjörður

Sölusaga fasteignar. Skráð 16.06.2025
Axlarás 37
Axlarás 37
Axlarás 37
Axlarás 37
Axlarás 37
146.000.000 kr.
614.478 kr./m²
7
Herb.
6
Svefnherb.
2
Baðh.
237,6
Fermetrar
Tegund
Rað/Par
Byggt
2025
Fasteignamat
19.300.000 kr.
Brunabótamat
0 kr.
Lýsing
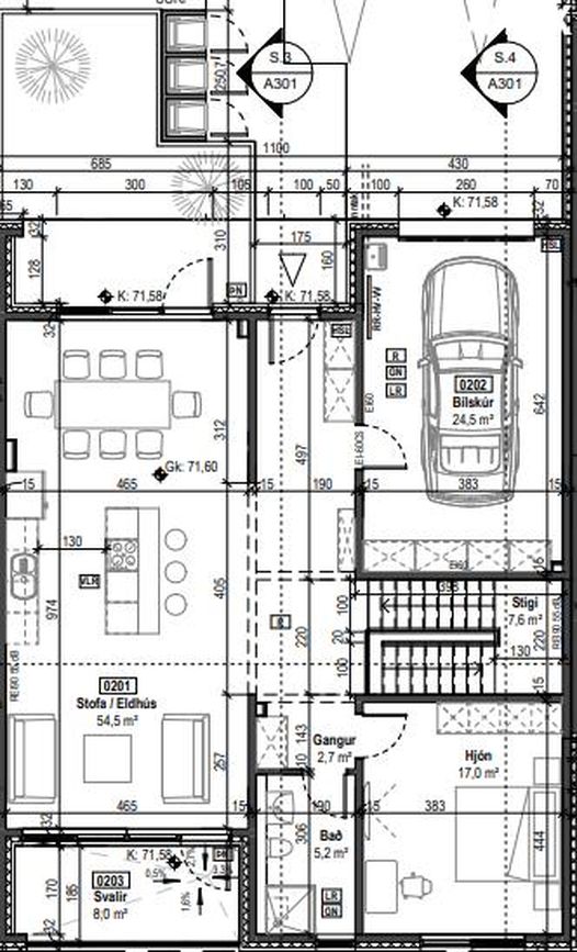
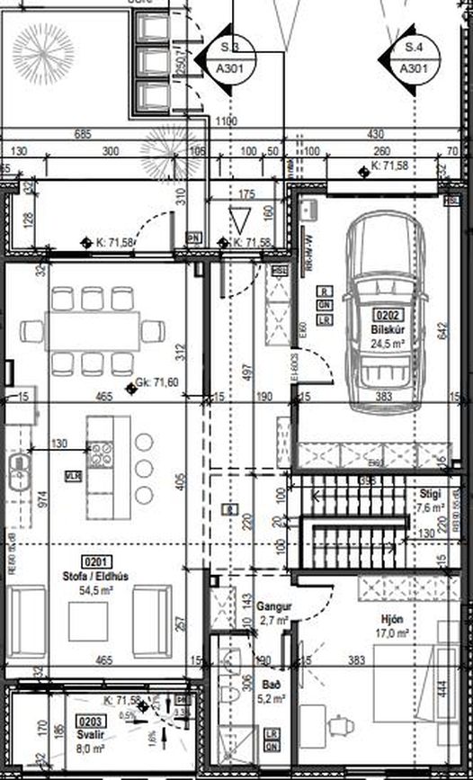
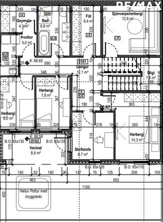
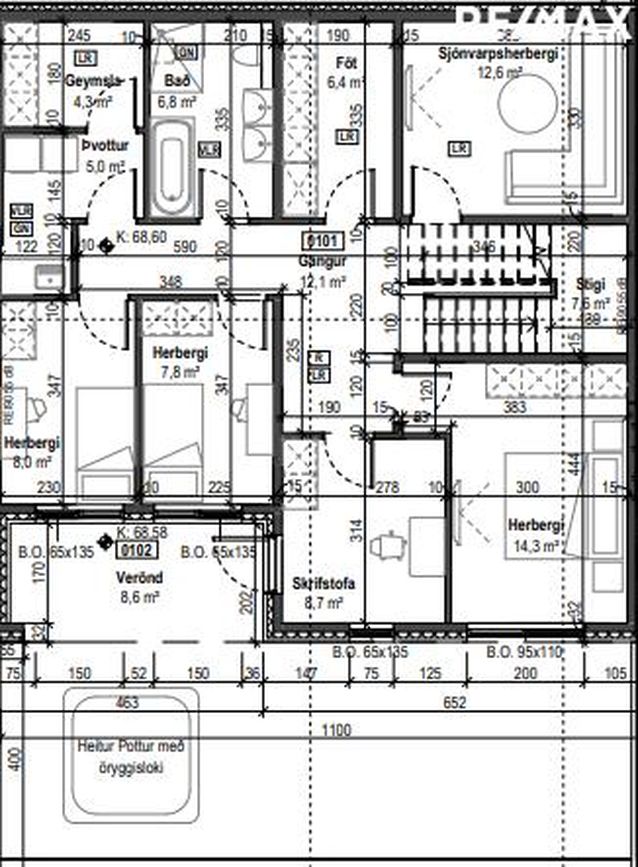
237,6 fm raðhús með 6 svefnherbergi, 2 baðherbergi, stórum svölum, gólfhita og 28,1 fm bílskúr. Staðsett í Áslandi í Hafnarfirði nálægt náttúrulegum stígum.
Þessi lýsing er búin til af gervigreind Aurbjargar
Eiginleikar
Íbúð
Forsteypt einingahús með háum loftum, stórum gluggum og opnu skipulagi. Húsið skiptist í tvo hæðir og inniheldur sjónvarpsherbergi og þvottahús.
Stofa
Stór rými með hárum loftum og opinni hönnun sem tengir saman mismunandi hluta íbúðarinnar.
Eldhús
Tilbúið fyrir innréttingu samkvæmt staðli, með möguleika á aðlögun að nútímalegum staðlum.
Svefnherbergi
Sex stór svefnherbergi með nægjanlegan pláss og náttúrulegu ljósi.
Baðherbergi
Tvö baðherbergi með nútímalegum útfærslum, tilbúin fyrir innréttingu.
Þvottahús
Þvottahús með plássi fyrir hefðbundin þvottavélar.
Bílskúr
Mjög stór bílskúr á 28,1 fm með beinum aðgangi.
Garður
Sérafnotareitur bæði að framan og aftan við hús.
Svalir/þak
Stórar svalir með glerhandriði og víðtæku útsýni.
Önnur herbergi
Sjónvarpsherbergi sem hluti af heildarrýminu.
Tæki
Ekki tilgreint hvaða tæki fylgja þar sem innréttingar eru ekki kláraðar.
Svæði
Fjölskylduvænt hverfi í Áslandi, í nágrenni við Hvaleyrarvatn og Helgafell með göngustígum og náttúrulegt umhverfi.
Efni
Forsteyptar samlokueiningar, járnbent steinsteypa í útveggjum og gólfplötum. Ál/tré-gluggar með sléttum karmum.
Annað
Kaupandi ber ábyrgð á greiðslu skipulagsgjals (0,3% af brunabótamati), ýmsum stempilgjöldum og þinglýsingargjölum.

Auglýsingasaga

Skoðaðu auglýsingasögu þessarar íbúðar á minni Aurbjörg.

26 myndir
apartment
apartment
apartment
apartment
apartment
apartment
apartment
apartment
apartment
apartment
apartment
apartment
apartment
apartment
apartment
apartment
apartment
apartment
apartment
apartment
apartment
apartment
apartment
apartment
apartment
apartment
Dags.StærðFermetraverðÁsett
16.10.2025 Nánar237,6601.852 kr.143.000.000 kr.
09.10.2025 Nánar237,6601.852 kr.143.000.000 kr.
07.10.2025 Nánar237,6614.478 kr.146.000.000 kr.
01.10.2025 Nánar237,6614.478 kr.146.000.000 kr.

Svipaðar eignir í sölu núna

Eignavakt Aurbjargar finnur draumaeignina þína út frá þinni mánaðarlegu greiðslugetu, þínum sparnaði og þínu eigið fé í núverandi fasteign.

Aurbjörg finnur tækifæri í fjármálum heimilisins
Láttu Aurbjörgu standa vaktina og hjálpa þér að taka betri ákvarðanir í fjármálum.
Gerast áskrifandi
Aurbjörg
Markmið Aurbjargar er að auka fjármálalæsi, auka gagnsæi og aðstoða þig við að taka upplýstari og betri ákvarðanir í fjármálum.
RannisTaekniþrounarsjod
© 2017-2025 • Aurbjörg ehf. • 430518-1430 • Lágmúla 9 • 108 Reykjavík