Aurbjörg

Axlarás 37 - 0101, 221 Hafnarfjörður

Sölusaga fasteignar. Skráð 09.10.2025
Axlarás 37
Axlarás 37
Axlarás 37
Axlarás 37
Axlarás 37
143.000.000 kr.
601.852 kr./m²
7
Herb.
6
Svefnherb.
2
Baðh.
237,6
Fermetrar
Tegund
Rað/Par
Byggt
2025
Fasteignamat
90.550.000 kr.
Brunabótamat
0 kr.
Lýsing
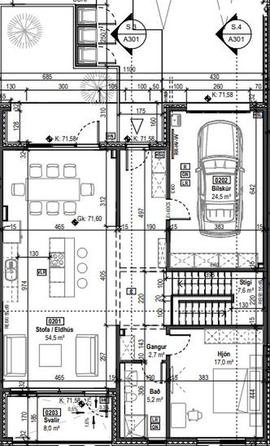
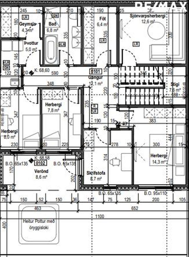
237,6 fm raðhús með 6 svefnherbergi, 2 baðherbergi, bílskúr (28,1 fm) og gólfhiti á báðum hæðum.
Þessi lýsing er búin til af gervigreind Aurbjargar
Eiginleikar
Íbúð
Tvö hæð raðhús með stofu, eldhúsi, sjónvarpsherbergi og þvottahús. Forsteypt með samlokueiningum og háum loftum.
Svefnherbergi
Sex svefnherbergi með háum loftum.
Baðherbergi
Tvö baðherbergi með grunnútfærslu.
Þvottahús
Þvottahús í innréttingunni.
Bílskúr
Mjög stórur bílskúr (28,1 fm).
Svalir/þak
Stórar svalir með suðurútsýni og dökkt glerhandrið.
Svæði
Fjölskylduvænt svæði í Áslandi nálægt Hvaleyrarvatni og Helgafelli með góðum útivistarmöguleikum.
Efni
Forsteyptar samlokueiningar með járnbentri steinsteypu. Útveggir með pússaðri áferð og málaðir í jarðlit.

Auglýsingasaga

Skoðaðu auglýsingasögu þessarar íbúðar á minni Aurbjörg.

26 myndir
apartment
apartment
apartment
apartment
apartment
apartment
apartment
apartment
apartment
apartment
apartment
apartment
apartment
apartment
apartment
apartment
apartment
apartment
apartment
apartment
apartment
apartment
apartment
apartment
apartment
apartment
Dags.StærðFermetraverðÁsett
17.10.2025 Nánar237,6601.852 kr.143.000.000 kr.
16.10.2025 Nánar237,6601.852 kr.143.000.000 kr.
09.10.2025 Nánar237,6601.852 kr.143.000.000 kr.
07.10.2025 Nánar237,6614.478 kr.146.000.000 kr.
01.10.2025 Nánar237,6614.478 kr.146.000.000 kr.

Svipaðar eignir í sölu núna

Eignavakt Aurbjargar finnur draumaeignina þína út frá þinni mánaðarlegu greiðslugetu, þínum sparnaði og þínu eigið fé í núverandi fasteign.

Aurbjörg finnur tækifæri í fjármálum heimilisins
Láttu Aurbjörgu standa vaktina og hjálpa þér að taka betri ákvarðanir í fjármálum.
Gerast áskrifandi
Aurbjörg
Markmið Aurbjargar er að auka fjármálalæsi, auka gagnsæi og aðstoða þig við að taka upplýstari og betri ákvarðanir í fjármálum.
RannisTaekniþrounarsjod
© 2017-2025 • Aurbjörg ehf. • 430518-1430 • Lágmúla 9 • 108 Reykjavík